QQ登录    

08我家网

2023兔年大吉

ジ呆呆ぁ貓ル的家

[复制链接]

280

帖子

0

原创值

24

金币

大四_装修达人

Rank: 4

积分
259

社区居民

 楼主| 发表于 2012-03-24 20:06:23 | 显示全部楼层

回 28楼(灰太翔) 的帖子

哈哈~~日记在下面哦~~你们家YY太忙啦~~
回复

使用道具 举报

280

帖子

0

原创值

24

金币

大四_装修达人

Rank: 4

积分
259

社区居民

 楼主| 发表于 2012-03-27 17:45:24 | 显示全部楼层

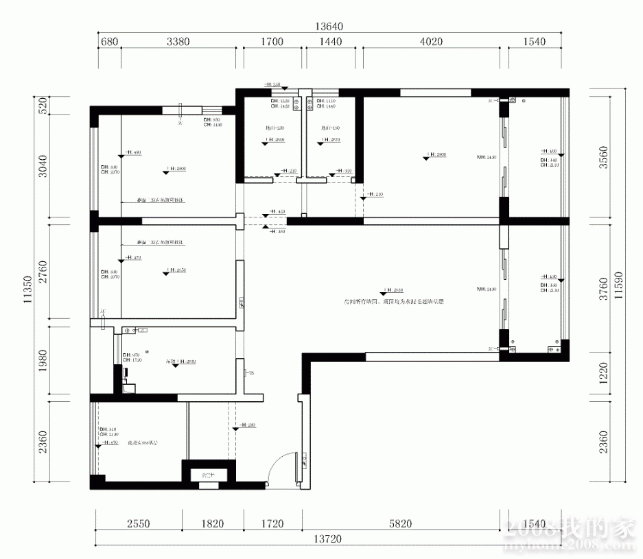
设计图揭晓~~

开工三天了,因为懒懒懒~~一直都没有去现场看看,那今天先上个户型设计图吧~~
说说这套房子的败笔吧,入户门就正对着厕所~~唉~~风水说这是大大的不利呀~


图片2.gif

再来看看我们的设计吧~~有很多亮点哦~~
1.电视背景墙隐形门      为了挡住次卫大门,江工设计在电视背景墙处,设计了一款移动木门~~关上之后,大家应该找不到我家厕所从哪去,呵呵~~具体感觉先个大家留个悬念~~想看效果的,记住关注我的日记哦~~(晚上设计效果图吧~~)
2.通透式餐厅    因KFS设计是将餐厅和客厅连在一起的,可是我超不喜欢这种感觉。所以我将入户花园改成了餐厅,而且入户花园都是从头到脚的玻璃墙,所以以后吃饭时,可以边吃边看看楼下幼儿园的小朋友。哈哈~~
3.软包式餐桌    江工说,因为受到餐厅大小的局限性,所以将餐桌设计成卡座式软包餐厅吧~~而且软包的凳子下面,还可以做屉子哦,实用性超强。
4.儿童房书桌+柜子+榻榻米 整体式设计   因中意于NY的李师傅三人组木工,所以我家所有的木工,全部是由装修公司做。这个也是我在网上看到一组图片,所以准备由李师父翻版出来~~


图片1.gif
回复

使用道具 举报

280

帖子

0

原创值

24

金币

大四_装修达人

Rank: 4

积分
259

社区居民

 楼主| 发表于 2012-03-27 21:21:08 | 显示全部楼层

电视背景墙效果图~~

噔噔噔~~~铛~~~
这就是江工设计出来传说中的————电视背景墙隐形门设计效果图啦~~
隐藏在哪呢?
这个背景墙上面,有一个是隐藏门,推开它,就可以去次卫,主卫,主卧啦~~
哈哈~你找到在哪了吗?

长大彩虹都客厅22.jpg
回复

使用道具 举报

280

帖子

0

原创值

24

金币

大四_装修达人

Rank: 4

积分
259

社区居民

 楼主| 发表于 2012-03-29 12:33:09 | 显示全部楼层
自从装修开始,和我LG头头谈的就是装修,想的也是装修,生怕不一个小心,完工之后,又留下什么时候遗憾……可是,哪有十全十美的事呢,但是还是尽可能的,做得完美些吧~~
       昨夜12点,躺在床上,我们突然又在讨论,因为原来的厨房门那道墙敲掉了,整个厨房进门改到了餐厅那边,而为了入房的通道和鞋柜达成统一,我们做了一个整体式的大柜子。(我也说不清了,看看图片吧~~不知道能不能清楚点)

          图片2.gif

PS:门洞右边的玻璃下面就是一个木工的柜子,而里面就是我们橱房了。

那现在我们又在考虑一个新的问题了,橱房的一面墙就是玻璃,下面是木板。问题是:
1.木板子刷漆后,日积月累会不会掉漆。
2.厨房以后肯定会有油烟,那怎么做卫生呢?
3.白色的漆,和厨房的磁砖会不会搭调呢~~

想着想着,我又爬起来给江工发QQ。。哈哈。。可怜的江工,居然还在深夜做图呢~~
于是呼,把我的问题,和他说了。江工说,小问题,我们有办法解决的。

于是江工提出了一种解决方案——————我们可以在木板后,订上一层防水艾特板,然后再贴砖。

防水艾特板?没听说过,想着想着,就入梦了~~哈哈~~睡了,有空的时候再百度一下吧~
回复

使用道具 举报

280

帖子

0

原创值

24

金币

大四_装修达人

Rank: 4

积分
259

社区居民

 楼主| 发表于 2012-03-30 13:57:45 | 显示全部楼层
在08丢出开工的贴后,一年半载也没搭理过,结果~~再次回来,就没有人理我鸟~~
回复

使用道具 举报

125

帖子

0

原创值

44

金币

大三_装修里手

Rank: 3Rank: 3

积分
113

社区居民

发表于 2012-03-30 14:38:38 | 显示全部楼层
祝楼主装修顺利!期待看到你家施工进展图片。。
回复

使用道具 举报

280

帖子

0

原创值

24

金币

大四_装修达人

Rank: 4

积分
259

社区居民

 楼主| 发表于 2012-03-30 18:33:09 | 显示全部楼层
引用第35楼阿振于2012-03-30 14:38发表的  :
祝楼主装修顺利!期待看到你家施工进展图片。。

谢谢哈~~终于有人发现我了~~哈哈~~我会继续写的~
回复

使用道具 举报

246

帖子

0

原创值

157

金币

大四_装修达人

能够善待不太喜欢的人,并不代表

Rank: 4

积分
218

社区居民

发表于 2012-03-30 18:47:09 | 显示全部楼层
期待中 ,终于来填坑了~~~嘻嘻
回复

使用道具 举报

280

帖子

0

原创值

24

金币

大四_装修达人

Rank: 4

积分
259

社区居民

 楼主| 发表于 2012-03-30 19:18:40 | 显示全部楼层

回 37楼(殇之石) 的帖子

哈哈~~开工一周了~呵呵~~
回复

使用道具 举报

5232

帖子

0

原创值

4139

金币

装修大学_教授

Rank: 7Rank: 7Rank: 7

积分
3884

社区居民灌水天才奖终身成就奖社区明星忠实会员社区劳模宣传大使奖特殊贡献奖原创先锋奖贴图大师奖最爱沙发金点子奖幽默大师奖新人进步奖

发表于 2012-03-31 13:13:24 | 显示全部楼层
一定要继续写,起码我和喜漾漾是忠实观众
回复

使用道具 举报

您需要登录后才可以回帖 登录 | 立即注册

本版积分规则