QQ登录    

08我家网

2023兔年大吉

龙猫旧房改造, 首页更新便民各师傅信息——东南亚混搭中式,提前剧透毕业照哦!毕业倒数...

  [复制链接]

231

帖子

0

原创值

55

金币

大四_装修达人

皮蛋哥哥~~

Rank: 4

积分
228

社区居民

发表于 2012-02-23 13:35:53 | 显示全部楼层
支持,顶起~~
回复

使用道具 举报

42

帖子

0

原创值

0

金币

大二_装修学长

Rank: 2

积分
39

社区居民

发表于 2012-02-23 13:54:09 | 显示全部楼层
学习学习
回复

使用道具 举报

83

帖子

0

原创值

9

金币

大三_装修里手

Rank: 3Rank: 3

积分
82
发表于 2012-02-23 15:19:19 | 显示全部楼层
三月就要拆旧了,麻烦给个拆旧师傅电话。呵呵
回复

使用道具 举报

83

帖子

0

原创值

9

金币

大三_装修里手

Rank: 3Rank: 3

积分
82
发表于 2012-02-23 15:21:17 | 显示全部楼层
亲爱的龙猫,你家拆完了吗?
回复

使用道具 举报

8

帖子

0

原创值

2

金币

大一_装修新生

Rank: 1

积分
6
发表于 2012-02-23 15:55:20 | 显示全部楼层
写得真详细!!
回复

使用道具 举报

400

帖子

0

原创值

1167

金币

设计师

让空间与人共舞,让生活与自然接

Rank: 8Rank: 8

积分
548

社区居民忠实会员社区明星

发表于 2012-02-23 18:48:16 | 显示全部楼层

回 148楼(龙猫) 的帖子

我在现场进行了水电和暖气两项定位都没提起我
回复

使用道具 举报

2067

帖子

0

原创值

2464

金币

设计师

Rank: 8Rank: 8

积分
1839

社区居民社区明星忠实会员

发表于 2012-02-23 22:28:27 | 显示全部楼层
你应该收到500一个平方的设计费,保证猫姐开帖的时候就写你。
    标题我都帮写好了:《抢劫一样收费的设计师-- 某某某》
      嘿嘿。

------
向猫姐汇报,今天我和 一位童鞋,定了你开团的浴室柜,3万多呢#¥%……&*
    够支持吧。呵呵
回复

使用道具 举报

18

帖子

0

原创值

2

金币

大一_装修新生

Rank: 1

积分
15
发表于 2012-02-23 23:48:55 | 显示全部楼层

回 41楼(龙猫) 的帖子

借鉴一下,呵呵。
回复

使用道具 举报

4387

帖子

0

原创值

655

金币

装修大学_教授

Rank: 7Rank: 7Rank: 7

积分
4041

社区明星社区居民

 楼主| 发表于 2012-02-23 23:56:24 | 显示全部楼层
好吧,应某人的要求还是提一下啊,视表现而定是男主角还是男配角啊。
皮蛋哥哥与我请的同是原树所以还在日记里叫板,说要比下设计才行,所以男主角同志要看着办了~

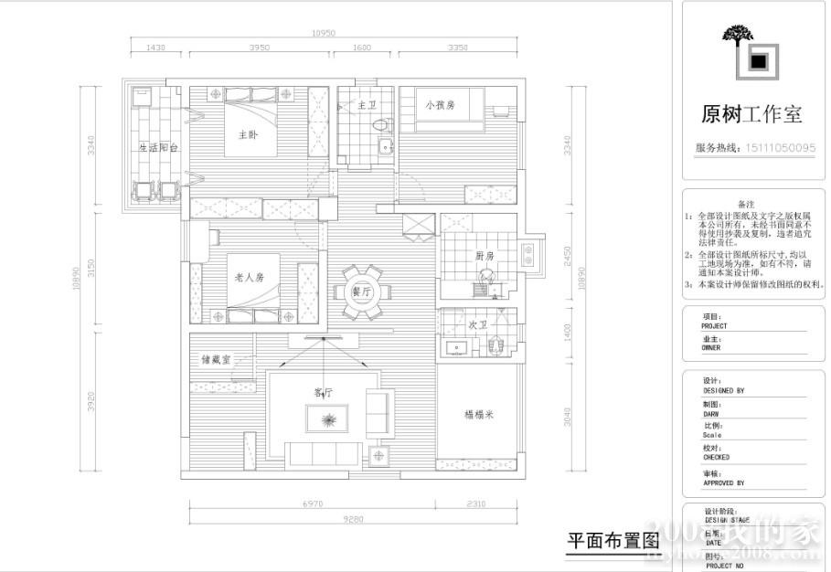
平面图附上:
未命名.jpg

平面设计图主要是根据家人需求啊、采光啊、休闲娱乐啊来定的,中间考虑了蛮多现有已经定的或意属的家具和家中原有家具的摆放,可供发挥的余地有限,需要从后期装饰、搭配中弥补了,所以我经常笑原树:别人家是一张白纸好做文章,而我们家属于命题作文了。
回复

使用道具 举报

400

帖子

0

原创值

1167

金币

设计师

让空间与人共舞,让生活与自然接

Rank: 8Rank: 8

积分
548

社区居民忠实会员社区明星

发表于 2012-02-24 00:46:09 | 显示全部楼层

回 158楼(龙猫) 的帖子

你们还真比设计啊!一个现代风格,一个东南亚混搭中式。出来的效果不一样,还是不要比的好。
回复

使用道具 举报

您需要登录后才可以回帖 登录 | 立即注册

本版积分规则