QQ登录    

08我家网

2023兔年大吉

南飞燕子的异地装房记-(今天我家水电验收了 全程照片报道)

[复制链接]

32

帖子

0

原创值

18

金币

大二_装修学长

Rank: 2

积分
30
 楼主| 发表于 2012-05-18 10:47:00 | 显示全部楼层
  布置完作业我就安心回了深圳,而后NY的设计师小邱给了我好几个方案,我都不是很满意,房子小啊,既想要这个,又不愿意舍弃那个,米米也要省,设计师也苦啊,被我折腾的!
    我也有点纳闷我考察了这么多装修公司,怎么只有一个和我进一步接触呢?一看qq明白了,那个很有诚意的追着我满世界跑的李哥,清明节做雷锋帮人救火受伤了,住院呢!!!!竞争者又少了一个!!
回复

使用道具 举报

460

帖子

0

原创值

253

金币

大四_装修达人

Rank: 4

积分
405

社区居民新人进步奖忠实会员

发表于 2012-05-18 12:12:05 | 显示全部楼层
支持下
回复

使用道具 举报

936

帖子

0

原创值

2万

金币

管理员

Rank: 20Rank: 20Rank: 20Rank: 20Rank: 20

积分
1281

社区居民忠实会员社区明星最爱沙发原创达人社区劳模

发表于 2012-05-18 19:11:24 | 显示全部楼层
引用第10楼denise1121于2012-05-18 10:47发表的  :
        布置完作业我就安心回了深圳,而后NY的设计师小邱给了我好几个方案,我都不是很满意,房子小啊,既想要这个,又不愿意舍弃那个,米米也要省,设计师也苦啊,被我折腾的!
    我也有点纳闷我考察了这么多装修公司,怎么只有一个和我进一步接触呢?一看qq明白了,那个很有诚意的追着我满世界跑的李哥,清明节做雷锋帮人救火受伤了,住院呢!!!!竞争者又少了一个!!

哈哈。。其实有太多的来接触你,也会为你带来很多困扰。不过这个有诚意的李哥,可还真值得表扬下。。
回复

使用道具 举报

1万

帖子

0

原创值

9607

金币

论坛元老

掰子姐

Rank: 15Rank: 15Rank: 15Rank: 15Rank: 15

积分
11275

吃货社区居民社区明星忠实会员最爱沙发新人进步奖幽默大师奖贴图大师奖原创先锋奖金点子奖特殊贡献奖宣传大使奖优秀斑竹奖终身成就奖灌水天才奖社区劳模原创达人

发表于 2012-05-18 20:51:10 | 显示全部楼层
异地装修辛苦啊~~
回复

使用道具 举报

332

帖子

0

原创值

1293

金币

大四_装修达人

Rank: 4

积分
329

民间厨神社区居民

发表于 2012-05-20 19:34:17 | 显示全部楼层
异地装修,厉害啊
回复

使用道具 举报

32

帖子

0

原创值

18

金币

大二_装修学长

Rank: 2

积分
30
 楼主| 发表于 2012-05-22 15:11:19 | 显示全部楼层
呵呵,我这个人呢还是很信缘分的,和NY的美女谈的最舒服了,其实当时就想差不多是这个了,下面直接上图吧,这是设计师给我的方案
回复

使用道具 举报

32

帖子

0

原创值

18

金币

大二_装修学长

Rank: 2

积分
30
 楼主| 发表于 2012-05-22 15:17:16 | 显示全部楼层
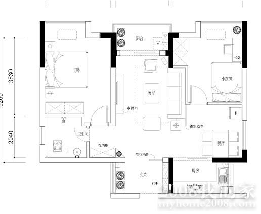
原始户型图,90平的两房
原始户型图.jpg
回复

使用道具 举报

32

帖子

0

原创值

18

金币

大二_装修学长

Rank: 2

积分
30
 楼主| 发表于 2012-05-22 15:26:43 | 显示全部楼层
方案大集会:
方案1.jpg
方案2.jpg
方案3.jpg
方案四.jpg
回复

使用道具 举报

32

帖子

0

原创值

18

金币

大二_装修学长

Rank: 2

积分
30
 楼主| 发表于 2012-05-22 15:41:04 | 显示全部楼层
我家的户型主要问题是次卧太小,客厅没有阳台,当时选房的时候选的这个户型还是博采众家意见,还找了个地产中介来给我们看户型,一看人家就说这个,理由就是“物以稀为贵”,小区90平的带入户花园的户型就这一栋有,我家的这个户型就是品字楼,突出来的那户,风景好,比较私密,而且还有个小资的入户花园,在深圳我是想不到了,直接拿下这个了!
     设计师给了我好多方案,以上方案也有很出彩的,主要是我这个人要求太多,房子是两老人住,考虑主要要方便,强制改成三房后,走道都不是很宽敞,餐厅附近的门太多,想想放弃,其他的几个方案要么就是觉得放东西的地方不够多,要么就是冰箱的位置不满意,哎!房子小啊,要是搞个大的就没这么纠结了,想搁哪儿搁哪儿!!
         后来想明白,没有十全十美,只有适当妥协,找一个我们能够接受的方法,适当的牺牲一些角落的美观了,入户花园就这样被我牺牲掉了!!下面就是我家的终极方案!
回复

使用道具 举报

32

帖子

0

原创值

18

金币

大二_装修学长

Rank: 2

积分
30
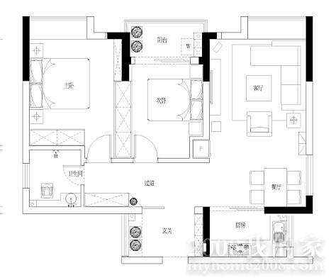
 楼主| 发表于 2012-05-22 15:45:20 | 显示全部楼层
这个布置图满足我的基本需求,功能区也都有了,房子小,有情调的吧台什么都都省了,实用为主,省钱是王道!!
方案5.jpg
回复

使用道具 举报

您需要登录后才可以回帖 登录 | 立即注册

本版积分规则