QQ登录    

08我家网

2023兔年大吉

漫步云中的环保装修--缓慢的更新

[复制链接]

850

帖子

0

原创值

11

金币

装修大学_研究生

Rank: 5Rank: 5

积分
821
发表于 2009-08-28 13:17:14 | 显示全部楼层
引用第349楼云中漫步于2009-08-26 21:52发表的 :
上上我家买的欧普灯


晕,在你LG的简约意见下,又选了跟我计划中一模一样的客厅灯啊~~
我们两家还真是有太多的雷同,幸好你还喜欢些花花草草的又纠结于指接木,否则我们两家估计就是一个味道了~~~

能在一家搞定就别搞两家我是很赞成的,家里东西搞了太多家,逛店需要的时间成本不说,就是路费也多出好多呢,虽然我谈的这家店,西蒙开关50家用版是4折,比群里特约那家39折高了一个百分点,但是火星那么远,运费早出来了哦~~而且而且,最重要的一点是群里特约团购点没有店面又没有防伪标签可查,西蒙开关可是保修12年的,将来想换只怕都没地找去~~支持你在郁金香买西蒙开关哦~~郁金香的店是是正路进货有防伪码可查,又有实体店面保证风险的~~
回复

使用道具 举报

120

帖子

0

原创值

3

金币

大三_装修里手

Rank: 3Rank: 3

积分
109
 楼主| 发表于 2009-08-28 23:48:35 | 显示全部楼层
橱柜第一是要环保,当初做功课的时候就决定了要用吉林露水河的板材。在网上搜索了一下,在长沙本土用正宗露水河板材的并不多,好像也就是人和,湘旺府,宜康,豪美这几个吧,一开始就把巨迪,德鑫,捷西之类给咔嚓了。初步选定湘旺府,原因是有TX去年10月份在08群做过一个团购,价格比较实在,配置的性价比也比较高,正宗吉林露水河带钢印的柜体,爱格的饰面板,生美的金刚石,百隆的铰链。而且湘旺府的报价也是实打实的。柜体,台面,吊柜分开算,而不像人和那样买地柜送60%的吊柜这样的价格实际虚高了很多。
    五一节在湘旺府交了200块定金,就叫设计师量了房,做了厨房水电图。做好后的水电图是L型的,总觉得台面还是少了点,跟设计师商量,设计师认为不好做成U型的设计,要不厨房会太挤了。我也没再坚持,但是心里总留下了遗憾。
   
回复

使用道具 举报

120

帖子

0

原创值

3

金币

大三_装修里手

Rank: 3Rank: 3

积分
109
 楼主| 发表于 2009-08-28 23:53:44 | 显示全部楼层
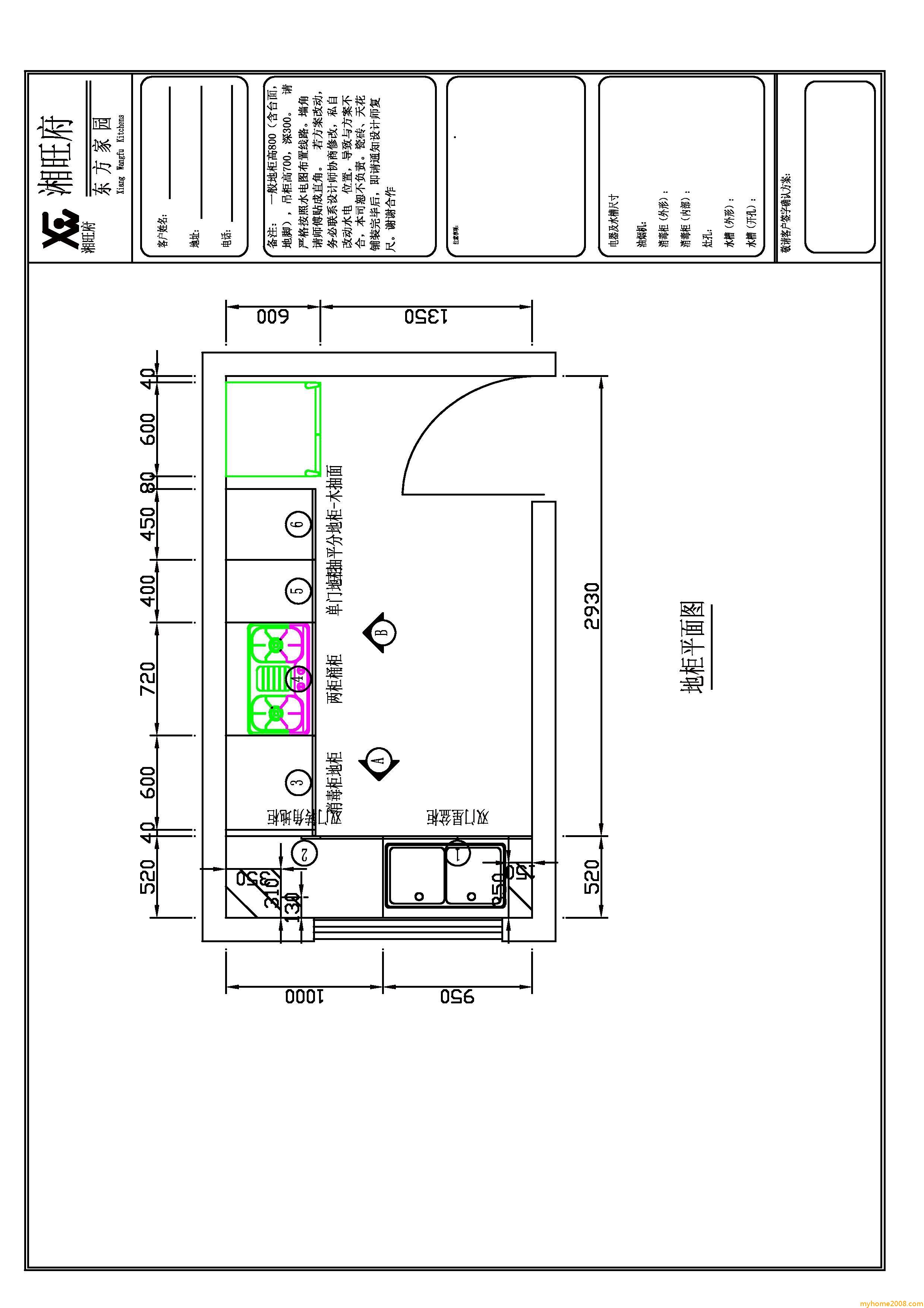
原来的设计图
C.jpg
回复

使用道具 举报

120

帖子

0

原创值

3

金币

大三_装修里手

Rank: 3Rank: 3

积分
109
 楼主| 发表于 2009-08-28 23:54:50 | 显示全部楼层
我想要的样子,被设计师否定
橱柜图.jpg
回复

使用道具 举报

120

帖子

0

原创值

3

金币

大三_装修里手

Rank: 3Rank: 3

积分
109
 楼主| 发表于 2009-08-29 00:08:33 | 显示全部楼层
  看到这里,大家都以为我家定的橱柜是湘旺府的了吧,且慢,真是一波三折,最后橱柜我还是定的人和。原因且听我慢慢道来。。。
那天月影家人和的设计师小李子正在为她家量房,彼时偶家的厨房已经走好水电,贴好砖了,我把小李子喊过来,问她我家的橱柜可以做成U形不,小李子看了看,给了我很肯定的答复,可以的,只是左边的台面可以做窄一点,比如右边的做成600的台面,左边的做成450的,中间的操作区还有105的距离是完全可以的。然后这个伶俐的丫头给我还为左边的台面设计了一微波炉区,一个小吧台。让我感觉特别满意。好像很多不满意又说不出的地方都让这个小姑娘当场解决了。于是立马决定改用人和橱柜。
回复

使用道具 举报

120

帖子

0

原创值

3

金币

大三_装修里手

Rank: 3Rank: 3

积分
109
 楼主| 发表于 2009-08-29 00:16:07 | 显示全部楼层
看看我家人和橱柜吧

人和的安装师傅非常专业

人和的安装师傅非常专业

露水河的柜体,我仔细检查了钢印

露水河的柜体,我仔细检查了钢印
回复

使用道具 举报

120

帖子

0

原创值

3

金币

大三_装修里手

Rank: 3Rank: 3

积分
109
 楼主| 发表于 2009-08-29 00:18:11 | 显示全部楼层
阳台洗手台的设计也让我很满意,小边柜还可以遮当一下旁边的锅炉
P1000835-3.jpg
P1000836-4.jpg
回复

使用道具 举报

120

帖子

0

原创值

3

金币

大三_装修里手

Rank: 3Rank: 3

积分
109
 楼主| 发表于 2009-08-29 00:19:07 | 显示全部楼层
松下的烟机也装好了,松下的安装师傅也不错
P1000840-5.jpg
回复

使用道具 举报

120

帖子

0

原创值

3

金币

大三_装修里手

Rank: 3Rank: 3

积分
109
 楼主| 发表于 2009-08-29 00:24:03 | 显示全部楼层
重点看看给我增加的台面设计吧,因为当时设计的时候没考虑,设计师没在这面墙留一个插头,所以都是走的明线设计,所幸的是人和的明线设计想的比较周到,最后搞好后还不丑。红色的电线接出来后接了两个明开关底盒。今后可以电器都放这边了。
P1000845-7.jpg
回复

使用道具 举报

120

帖子

0

原创值

3

金币

大三_装修里手

Rank: 3Rank: 3

积分
109
 楼主| 发表于 2009-08-29 00:24:40 | 显示全部楼层
另一边的台面
P1000844-6.jpg
回复

使用道具 举报

您需要登录后才可以回帖 登录 | 立即注册

本版积分规则