|
楼主 |
发表于 2013-03-26 22:45:51
|
显示全部楼层
设计篇
房子已经买了,现在说户型的缺点有点“马后炮”的意思。
但是,户型真正的缺点却是在做装修设计的时候真正的暴露出来。
我们对设计的要求是简约、舒适、实用。喜欢的风格是简约欧式。
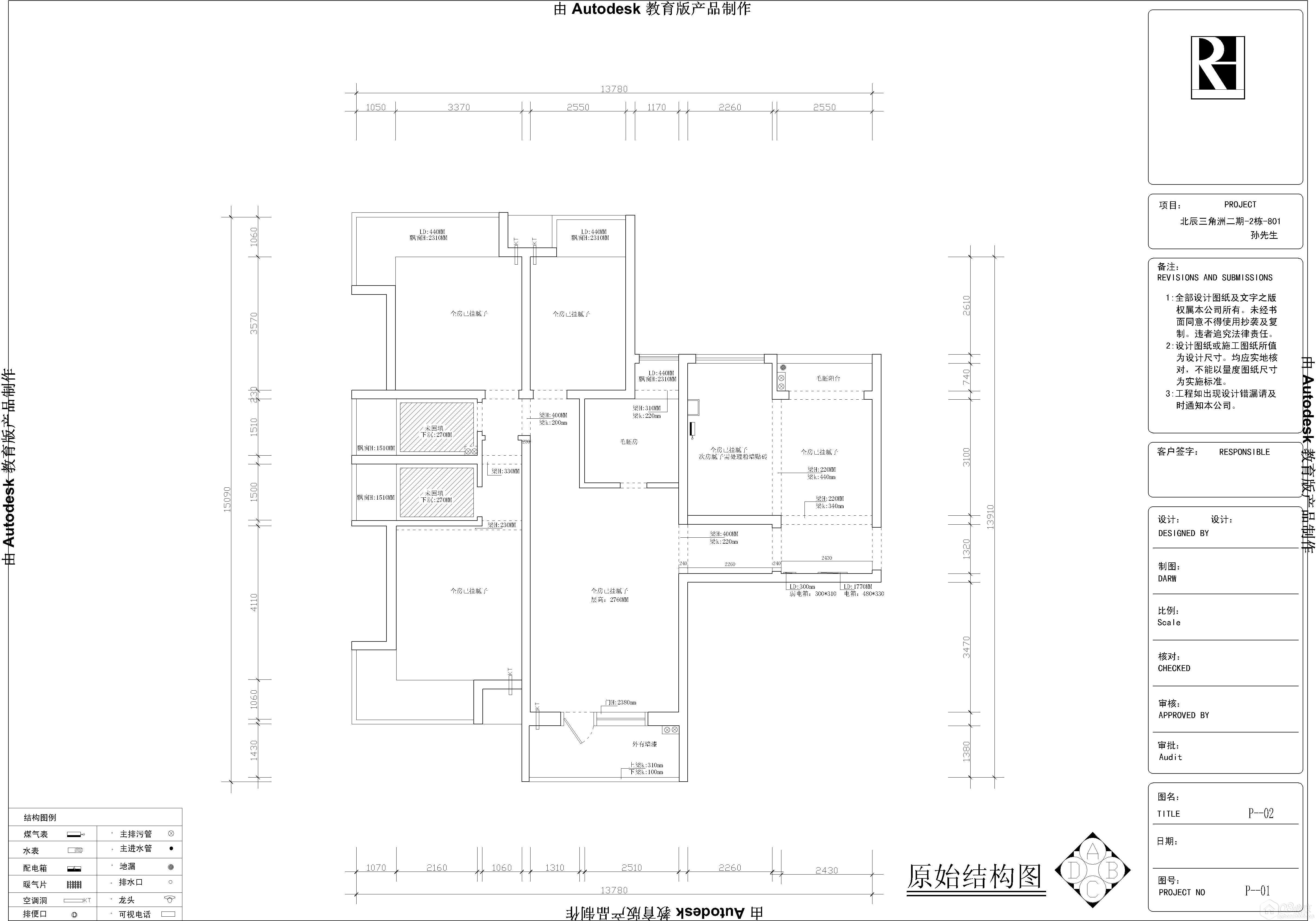
看看售楼部里的户型,再看看实际的户型结构图,我只能说,眼尖的TX一定发现了我家最“坑爹”的地方就是那两个不能推出去的“小小”卫生间了。
(后面还会有大量的关于此卫生间“坑爹”的实际说明。)这里先按下不表。
设计图是RH的设计师给做的。基本能满足我们对设计的要求。
其实,不是设计师不会设计“天马行空”的东东。其实只要我们有要求,设计师总能提出一种或几种设计方案。当然,有时候,也会告诉你,这种想法不可行。我家的设计是要能从纸上的图变成现实的家的,所以不要太复杂。相对来说,复杂的设计会增加不少的造价和不可避免的装修污染。
——其实我挺喜欢LYC的设计,希望能学习并吸收部分的精华,体现在我家的风格中。
如果大家都采用这种偷师+DIY的设计法,大师们会不会很郁闷呢?
售楼部里的户型图
售楼部的户型图
原始结构图
原始结构图
设计图
设计图
|
|