QQ登录    

08我家网

2023兔年大吉

五一中央领域 90平米三房 时尚现代简约风  标题要长,才有吸引力。。。

[复制链接]
  • 所在城市:长沙
  • 所在小区:五一中央领域
  •  
  • 装修类型:新房装修
  • 装修户型:三房
  •  
  • 装修方式:全包
  • 装修风格:现代简约
  •  
  • 装修预算:20万—30万
  • 开工时间:2013-03-01
  • 前期设计
  • 主体拆装
  • 水电
  • 泥工
  • 木工
  • 油漆
  • 成品安装
  • 软装配饰
  • 毕业
已装修历时4554

48

帖子

0

原创值

25

金币

大二_装修学长

Rank: 2

积分
45

社区居民

发表于 2013-05-03 16:16:01 | 显示全部楼层 |阅读模式

人生第一次装修,写个日记是必须滴!顺便来收集各位看官意见!大家帮我监督啊!

1万

帖子

628

原创值

1万

金币

荣誉版主

积分
8155

社区居民忠实会员社区劳模最爱沙发社区明星

发表于 2013-05-03 21:56:41 | 显示全部楼层
   来拐走个沙发。沙发舒服啊
回复

使用道具 举报

48

帖子

0

原创值

25

金币

大二_装修学长

Rank: 2

积分
45

社区居民

 楼主| 发表于 2013-05-04 15:50:37 | 显示全部楼层
装修公司的敲定

1,装修公司vs包工头 差价问题
由于是第一次装修房子,也有朋友的房子刚装修,他们找的包工头,朋友自己也是做室内设计的,让朋友报了一个包工头的价格,然后对比了装修公司的价格,大概价格差不多,朋友也说小户型的房子差价不会太大。
仔细对比了价格后,发现朋友给我包工头的价格80%略高于装修公司,我们也是比较奇怪怎么会是这样呢。
我婶也准备装修,找的也是包工头,我们核对了下工钱,基本差不多。
2,时间问题
我和老公平常都要上班,只有周末和晚上是休息的,如果丢给装修公司更加省事一点
3,售后问题
丢给装修公司可以当大爷,多花10%制安部分的管理费,可以当大爷,有问题就一个电话过去了。之前有亲戚的房子就是找的个人,结果出了问题没地方找,又要重新花钱来修补。

就这几点,我们基本敲定选装修公司来进行我们第一套房的装修。

至于为什么选择了柠檬树装饰,因为他们的销售比较牛,活动也还算给力,价格总体算是大公司里比较便宜的那种,相对于点石、美迪、鸿扬算是比较便宜的了。
回复

使用道具 举报

48

帖子

0

原创值

25

金币

大二_装修学长

Rank: 2

积分
45

社区居民

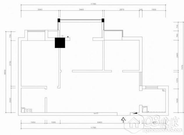
 楼主| 发表于 2013-05-04 15:52:41 | 显示全部楼层
户型.jpg
回复

使用道具 举报

48

帖子

0

原创值

25

金币

大二_装修学长

Rank: 2

积分
45

社区居民

 楼主| 发表于 2013-05-04 15:55:20 | 显示全部楼层
上一张开发商卖房时候的图吧

这个户型朝南,客厅光线不足,只有一个1.2米的窗户,卫生间无窗!
不过在20+层,只要把中间2个房间的门敞开来,客厅光线还是OK的。
厨房特别小,如果是常做饭的话还是很挤的。
开发商这个尺寸跟现场量房尺寸是有差别滴
户型2.jpg
回复

使用道具 举报

48

帖子

0

原创值

25

金币

大二_装修学长

Rank: 2

积分
45

社区居民

 楼主| 发表于 2013-05-04 15:57:29 | 显示全部楼层
设计方案A

我们从四月下来过了无数设计方案,反复的修改,房子只有这么大,三间房都可能要住人,但是又不能没有书房,我和老公都是从事设计工作,面对电脑的时间还是非常多的,所以也想要有书桌可以排排坐上网的,哈哈。要求又多,房又小,真tm纠结啊!

先来看看我一个室内设计的朋友帮我做的方案吧,一开始觉得比较简洁,后来拿着装修公司的方案回过头来看,越来越觉得他这个方案还不错了,他也是有设计方案在省内获过奖的,可惜一直没机会把他约出来聊一下。
户型3.jpg
回复

使用道具 举报

48

帖子

0

原创值

25

金币

大二_装修学长

Rank: 2

积分
45

社区居民

 楼主| 发表于 2013-05-04 15:57:50 | 显示全部楼层
对于这个方案,我还是有点点纠结的,比方说我觉得厕所没必要占这么大的空间
回复

使用道具 举报

48

帖子

0

原创值

25

金币

大二_装修学长

Rank: 2

积分
45

社区居民

 楼主| 发表于 2013-05-06 15:52:36 | 显示全部楼层
设计方案N

这是装修公司给设计的最后快完稿的方案,只有主卧那个门不动了,可能就按照这个图来施工了。快快帮我看看有没有什么问题喔,亲们
回复

使用道具 举报

48

帖子

0

原创值

25

金币

大二_装修学长

Rank: 2

积分
45

社区居民

 楼主| 发表于 2013-05-06 15:54:10 | 显示全部楼层
效果图来啦!,上面颜色有偏红的有偏黄的,不太喜欢,要么沙发也偏红也可以,本来昨天还有一款效果图,更暗,本来客厅就光很少,哎,那个不过电视背景墙没钱弄,这种金属的马赛克其实蛮喜欢的!
实景.jpg
回复

使用道具 举报

48

帖子

0

原创值

25

金币

大二_装修学长

Rank: 2

积分
45

社区居民

 楼主| 发表于 2013-05-06 15:54:43 | 显示全部楼层
哎,这图怎么这么小,上张大图吧!
回复

使用道具 举报

您需要登录后才可以回帖 登录 | 立即注册

本版积分规则