QQ登录    

08我家网

2023兔年大吉

管它东南西北风,实用舒适是王道----装修战斗的号角吹响,带着偶的“土豪金”向小蜗居冲啊。。。

[复制链接]

151

帖子

0

原创值

373

金币

大三_装修里手

Rank: 3Rank: 3

积分
95

社区居民忠实会员

 楼主| 发表于 2013-11-10 19:30:00 | 显示全部楼层
芹菜 发表于 2013-11-9 23:08
先在开工前,把一些主材以及时间上必须提前考虑的先定好,开工后就不会手忙脚乱的啦。
相信你哦。看好你 ...

嗯嗯,努力整理自己的乱绪中,有限的时间,无限多的活儿啊
回复

使用道具 举报

151

帖子

0

原创值

373

金币

大三_装修里手

Rank: 3Rank: 3

积分
95

社区居民忠实会员

 楼主| 发表于 2013-11-10 19:31:03 | 显示全部楼层
玫瑰影子 发表于 2013-11-9 23:36
开工的业主蛮多的呀!
祝贺楼主开工大喜!装修顺利!

多谢吉言
回复

使用道具 举报

151

帖子

0

原创值

373

金币

大三_装修里手

Rank: 3Rank: 3

积分
95

社区居民忠实会员

 楼主| 发表于 2013-11-10 19:32:19 | 显示全部楼层
leeyouliang 发表于 2013-11-9 23:55
楼主太会码字了,膜拜。我要是打上这么一大段,绝对错误百出。加油!等更新。

过奖了,记流水账而已,争取及时来更
回复

使用道具 举报

151

帖子

0

原创值

373

金币

大三_装修里手

Rank: 3Rank: 3

积分
95

社区居民忠实会员

 楼主| 发表于 2013-11-10 20:15:18 | 显示全部楼层
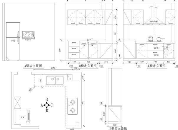
今天上午接到橱柜那边的电话通知去看水电图,中午下班后趁着午休时间过去。橱柜的图纸比我想象中简单多了,可能是看设计图纸一大本后再看到两张薄薄的图纸后产生了这种错觉,呵呵
布局的话我家是L型厨房,面积也不大,而且还包含了通生活阳台的过道。放灶和水槽的地方也相对固定,没有太多设计的空间,也就没怎么变动。我对于厨房的小真是有点莫名的小忧伤,一个敞亮的厨房才能让人操办美食的动力。平日里自己经常下厨的,所以对厨房的使用还是有些要求的:1、洗切区的台面打算比炒菜区的留高一些,一样高度的台面往往只满足了炒菜的需要,洗菜洗碗常得弯腰的干活,长久下来难免劳损。2、备用电源多留几处。厨房小家电现在多的很,我经常是N个东东同时尬场的,所以电源必不可少。3、烟机的电源往往在上方,决定在下面做只控制开关,以便清洗烟机的时候方便关掉电源而不需架凳子爬高。4、微波炉还是架在墙上,不打算放在柜里,一方便散热二方便节约柜内的空间。5、留出放小菜和厨房垃圾收纳的地方。6、锅炉那只胖纸就打算丢在生活阳台,厨房这只小庙实在不适合他待。7、最好是按洗、切、炒的流线型操作方式布局。这样人操作起来比较顺手和舒服。8、吊柜柜门的宽度我得再考虑考虑,柜门过宽的话很容易碰哒脑壳。9、烟机我选了帅康侧吸式的,一是因为厨房小二是因为顶吸式真的容易碰脑壳些。我是好珍惜自己的脑壳的。再者油烟机一定要选油烟分离并且好搞卫生的。灶选的华帝的聚能灶,华帝是做灶起家的,应该不错。聚能灶没明火,方便夏天使用凉霸。我现在的家也装了凉霸,可惜一开机炒菜的火苗被吹歪了,所以使用频率极低,夏天只能火热滴干活。10、厨房准备到时还装只换气扇,去看吊顶的时候再一起看看。11、抛弃消毒柜,直接上碗碟篮,一切从实用主义出发。12、台面的前挡水不知造价如何,如若不是太贵还是考虑,洗菜很容易把水弄洒出来。13、净水器还是准备备一只,水质堪忧,不过考虑到造价估计就弄个厨房净水了。14、厨房的墙砖再不用哑光的了,真心不好搞卫生。15、水槽打算买后置下水的那种,可以让水槽下面的柜体不至于放不了东西。16、调味拉篮也抛弃了,没处安放,调味的东西还是习惯在手边直取,到时在墙上搞个置物架。17、整了两小一大三个抽屉,以放些小件的杂货。暂时想了这么些,反正做橱柜还要段时间,还容得我仔细琢磨琢磨。

L橱柜布局

L橱柜布局
回复

使用道具 举报

151

帖子

0

原创值

373

金币

大三_装修里手

Rank: 3Rank: 3

积分
95

社区居民忠实会员

 楼主| 发表于 2013-11-10 20:56:34 | 显示全部楼层
本帖最后由 策你不赢 于 2013-11-10 20:58 编辑

今天补记点之前没说到的东东:
1、买房篇。因为有熟悉的朋友买在米兰,去看的时候就喜欢上了那种意大利小镇的风格。暖色调的外墙,六层的电梯房,南北通透,铁艺的栏杆上挂着小花架,站在三面镂空的阳台上身披阳光的赶脚真心不错。现在住的是高层,还是觉得太压抑了些。买的是现房,也省却了从沙盘到房子的想象。我买之前没怎么去对比别的楼盘,买房有时候就是那种第一眼的感觉,“只是在楼群中多看了你一眼”
2、装修风格。之前没买房前北欧、田园、地中海的风格都很爱,真正面临装修了却又顾不上什么风格了,预算有限,还是只能以经济实用舒适为主了。每每去装修公司,被问到的头一句就是你想要什么风格的,实用风格好像不在这些名词之内哈。背景墙和吊顶这些供外人赏鉴的部分我是通通舍弃,自己日常生活要用到的才是最要紧的,比如柜子要尽最大可能的多,哈哈,我是柜子控,能做柜子的地方绝不放过,只能怪买的东东太多,总得找个地儿归置它们,不然家里一摊乱象。
3、装修方式和装修公司选择。对于有时间有经验的人来说,清包是可行的。对于偶等上班族没钱没时间,而且房子路途遥远的,只能倾向于半包。大公司的报价自然不菲,预算有限的我们既希望价廉又希望物美,所幸08上资源丰富,有助于我们的选择。我选公司是在我现在住的附近一圈范围内圈出几家公司,逐个去看的。去公司首先要跟设计师谈谈对房子设计的想法,材料工艺固然重要,我最先想考虑的还是房子的设计。
4、尽管有设计师,但是房子是自己住的,首先自己应该担负起设计的责任,房间的布局自己要根据日常的生活习惯先初步设想一下,跟设计师谈的时候把你的一些要求告诉他,让他们来帮助你美梦成真。我觉得设计师主要是从专业的角度来帮你看看哪些改动是可以实现,哪些改动是有利空间的。
DSC_0651.jpg
DSC_0660.jpg
DSC_0663.jpg
DSC_0665.jpg
DSC_0666.jpg
DSC_0667.jpg
回复

使用道具 举报

1万

帖子

628

原创值

1万

金币

荣誉版主

积分
8155

社区居民忠实会员社区劳模最爱沙发社区明星

发表于 2013-11-10 22:57:37 | 显示全部楼层
策你不赢 发表于 2013-11-10 19:30
嗯嗯,努力整理自己的乱绪中,有限的时间,无限多的活儿啊

学习一下,搞懂装修中需要哪些东西,购买的顺利,思路理清楚了就好啦。
加油,相信你!
回复

使用道具 举报

1万

帖子

628

原创值

1万

金币

荣誉版主

积分
8155

社区居民忠实会员社区劳模最爱沙发社区明星

发表于 2013-11-10 23:01:29 | 显示全部楼层
策你不赢 发表于 2013-11-10 20:15
今天上午接到橱柜那边的电话通知去看水电图,中午下班后趁着午休时间过去。橱柜的图纸比我想象中简单多了, ...

考虑得太全面了。厉害!
话说,原来凉霸跟华帝聚能灶是绝配啊,夏天木有凉风的厨房真是伤不起啊
回复

使用道具 举报

1万

帖子

628

原创值

1万

金币

荣誉版主

积分
8155

社区居民忠实会员社区劳模最爱沙发社区明星

发表于 2013-11-10 23:03:18 | 显示全部楼层
策你不赢 发表于 2013-11-10 20:56
今天补记点之前没说到的东东:
1、买房篇。因为有熟悉的朋友买在米兰,去看的时候就喜欢上了那种意大利小 ...

美哉,米兰春天!
回复

使用道具 举报

89

帖子

0

原创值

152

金币

大三_装修里手

Rank: 3Rank: 3

积分
59

社区居民

发表于 2013-11-11 16:21:54 | 显示全部楼层
爱金毛
回复

使用道具 举报

247

帖子

0

原创值

166

金币

大三_装修里手

Rank: 3Rank: 3

积分
154

社区居民忠实会员

发表于 2013-11-11 20:51:26 | 显示全部楼层
小区看起来很洋气啊。
回复

使用道具 举报

您需要登录后才可以回帖 登录 | 立即注册

本版积分规则