QQ登录    

08我家网

2023兔年大吉

12.10更新瓷砖橱柜安装,华成地暖,格力风管机,全房瓷砖,各种团购团出来的李娭毑の休闲美式小三居!

  [复制链接]

48

帖子

0

原创值

86

金币

大二_装修学长

Rank: 2

积分
25
发表于 2014-08-27 11:10:27 | 显示全部楼层
团购要多参加。哈哈
回复 回复(1)条

使用道具 举报

37

帖子

0

原创值

108

金币

大一_装修新生

Rank: 1

积分
19
发表于 2014-08-27 12:29:54 | 显示全部楼层
我要看隐藏内容
回复 回复(1)条

使用道具 举报

2127

帖子

0

原创值

2390

金币

装修大学_研究生

Rank: 5Rank: 5

积分
1109
 楼主| 发表于 2014-08-27 14:54:33 | 显示全部楼层

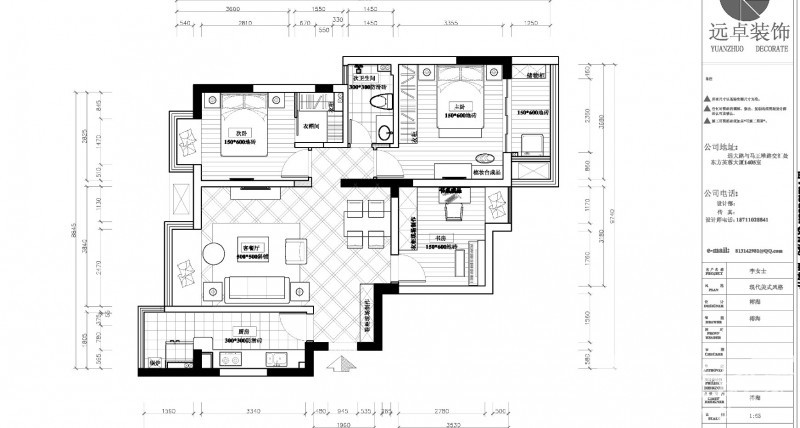
【梦洁家居杯】积极响应鸡血挑战!客餐厅砖铺完啦,有些小激动~来看李娭毑的美屋~远卓半包,格力风管机,华成地暖,利家居瓷砖各种08团~

本帖最后由 洋洋坨 于 2014-9-25 05:00 编辑

前面就说到我们家户型傻逼,格局丑逼,所以要花大把的时间和脑细胞来调整,使我的得房率 利用率到最高,所以大家都会觉得我纠结

不过没关系,为了我老娘住的舒服,为了我以后住的舒坦,我纠结我自豪! 2s.jpg


庆幸吧良哥!
有这么耐得烦的设计师@榕海,被我辣手摧残的泪已决堤.
给他们涨工资吧良哥!
有这么懂技术的客服@721橙子,帮我做各种预算,眼泪水不得干


不过我都要谢谢他们.可以满足我各种设想,帮助我做各种调整,目的都只有一个,就是把房子装修装好装到我满意!所以我一定要带你们一起装逼一起飞!
f.jpg




接下来请看看我设计师辛辛苦苦和我沟通过好多好多遍的设计 请大家给赞!


QQ截图20140827151215.jpg



回复

使用道具 举报

2127

帖子

0

原创值

2390

金币

装修大学_研究生

Rank: 5Rank: 5

积分
1109
 楼主| 发表于 2014-08-27 15:13:29 | 显示全部楼层

【梦洁家居杯2014日记大赛】请大家支持黄队。我是黄队19号~洋洋团长各种团。团出来的小美屋

本帖最后由 洋洋坨 于 2014-11-17 20:49 编辑

我是黄队19号洋洋坨,请大家给我投票支持哟!还有我们小黄人队的其他16位小伙伴们都需要大家的支持与鼓励!欢迎大家给18-34号小黄人们投票哟!感激不尽~
其实我们家早就可以开工的,迟迟没能开工主要是我纠结前期的设计和预算,再个就是我屋里漏水问题没得到解决.这让我一个头两个大啊
在跟开发商斗智斗勇一个多月迟迟得不到切实的解决办法之后我只能选择开工啦

因为今年天气怪异 凉快的好早.我怕来不及吹干.说到这里我就好想唱一句,我怕来不及 我要抱着你

所以就定一个吉利的日子来开工啦~8月18日 10:28发 要发~要你爱发~来跟大家晒晒幸福的开工和不信的漏水





IMG_6865.jpg
IMG_6866.jpg
IMG_6868.jpg
IMG_6869.jpg
回复 收藏

使用道具 举报

209

帖子

0

原创值

143

金币

大三_装修里手

Rank: 3Rank: 3

积分
105
发表于 2014-08-27 15:21:46 | 显示全部楼层
进来学习装修知识
回复

使用道具 举报

2127

帖子

0

原创值

2390

金币

装修大学_研究生

Rank: 5Rank: 5

积分
1109
 楼主| 发表于 2014-08-27 15:28:45 | 显示全部楼层

谢谢~帖子更新啦
回复

使用道具 举报

2127

帖子

0

原创值

2390

金币

装修大学_研究生

Rank: 5Rank: 5

积分
1109
 楼主| 发表于 2014-08-27 15:29:03 | 显示全部楼层
旺仔 发表于 2014-7-27 00:03
不回复,我也猜是从了"建良"

你也是从了建良啦~
回复

使用道具 举报

2127

帖子

0

原创值

2390

金币

装修大学_研究生

Rank: 5Rank: 5

积分
1109
 楼主| 发表于 2014-08-27 15:29:24 | 显示全部楼层
风风吹落 发表于 2014-7-27 00:03
不说我也知道,哈哈哈

这是一个公开的秘密了嘛
回复

使用道具 举报

2700

帖子

0

原创值

652

金币

装修大学_博士生

Rank: 6Rank: 6

积分
2660

社区居民社区明星忠实会员社区劳模最爱沙发

发表于 2014-08-27 15:29:29 | 显示全部楼层
李娭毑终于更新哒  再下个雨  看下整改处 不漏就可以安心了~~
回复

使用道具 举报

2127

帖子

0

原创值

2390

金币

装修大学_研究生

Rank: 5Rank: 5

积分
1109
 楼主| 发表于 2014-08-27 15:29:52 | 显示全部楼层
榕海 发表于 2014-7-27 08:59
两个纠结的麻花凑到一锅了,我只能说且行且珍惜,装修一切顺利。

还是要感谢你的耐心和设计
回复

使用道具 举报

您需要登录后才可以回帖 登录 | 立即注册

本版积分规则