QQ登录    

08我家网

2023兔年大吉

[装修教室]08装修教室第三讲——设计·沟通(40楼更新讲座汇报)

[复制链接]

7878

帖子

0

原创值

3159

金币

荣誉版主

积分
7785

社区居民社区明星终身成就奖宣传大使奖优秀斑竹奖原创先锋奖忠实会员最爱沙发社区劳模原创达人

发表于 2010-09-11 22:07:19 | 显示全部楼层 |阅读模式
团 购 品 牌
团 购 时 间
2010-9-11 21:55 至 2010-9-17 21:55
已报名人数
16

温馨提示:建材属复杂的服务产品,具有一定风险。请各位网友务必在团购期间内参团,且仔细阅读团帖内容。未在团购期间参团以及未及时提报团购订单,08我家网不负责协调处理任何售后事宜。

讲座汇报在40楼
http://www.08wojia.com/forum.php ... 8167&pid=299444

已经进入秋季了
一年当中所谓的装修最佳季节已经来临
是否正等着装修
是否还在为找设计师而苦恼
是否还在为家里的设计而绞尽脑汁
是否还在为家居设计的风水问题而到处打听
赶快来吧
08装修教室邀请专业设计师为你讲述
如何与设计师沟通
如何设计最适合自己的装修风格
不要犹豫
赶快参加08装修教室
享受一次家居设计的洗礼
也许令你茅塞顿开
也许令你灵光一现
完美家居设计就此诞生
就在08装修教室
9月18日下午14:30
家装设计盛宴
静候您的参与

点击左上角的“我要报名”
立即加入我们的08装修教室

地址:PLM 长沙市马王堆中路140号 (百艾窗帘对面)
1.jpg

   

——————————————分割线—————————————————
为了使我们的家装设计课程更加贴近实际
现征3套户型作为“设计实例”讲解户型
我们的专业设计师
将根据您的需求
运用专业的水平
以实例讲解设计要点
以实例讲解如何构思自己的家

没错
就是您的户型
我们的装修设计培训
就以您的户型为实例进行讲解

申请“设计实例”户型的同学
请跟帖上传您的户型图
并说明以下情况
1、面积
2、对户型有何不满
3、需要什么风格
4、家庭成员、生活习惯、爱好
5、预算
同时请仔细填写下表
连同户型图一并上传
业主信息表.xls (15 KB, 下载次数: 1230)

123

帖子

0

原创值

18

金币

大三_装修里手

Rank: 3Rank: 3

积分
120

社区居民

发表于 2010-09-11 22:16:09 | 显示全部楼层

Re:08装修教室第三讲——设计·沟通

哈哈哈哈哈哈
报名~~~~~~~~~
现场跪求美女设计师深夜骚扰指点。。。。
情况如下:
1、老人居住,要求现代省钱简约。
2、老房改造,砖混结构。
3、一楼,光线不好。
4、有品位就行,欢迎设计师天马行空。
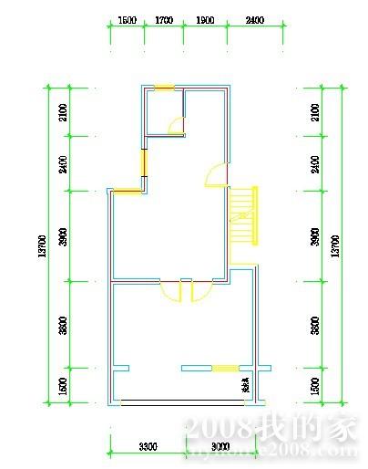
户型.jpg

户型及业主信息.rar (27 KB, 下载次数: 842)
回复

使用道具 举报

1万

帖子

0

原创值

9609

金币

论坛元老

掰子姐

Rank: 15Rank: 15Rank: 15Rank: 15Rank: 15

积分
11275

吃货社区居民社区明星忠实会员最爱沙发新人进步奖幽默大师奖贴图大师奖原创先锋奖金点子奖特殊贡献奖宣传大使奖优秀斑竹奖终身成就奖灌水天才奖社区劳模原创达人

发表于 2010-09-11 22:25:11 | 显示全部楼层
楼上的同学要说点基本的或特殊的要求才好。。。设计要以人为本。
回复

使用道具 举报

D

337

帖子

0

原创值

137

金币

装修大学_研究生

Rank: 5Rank: 5

积分
516

社区明星社区居民

发表于 2010-09-12 09:22:56 | 显示全部楼层
   幸苦的各位大大啊。。。鼓掌。。
回复

使用道具 举报

2067

帖子

0

原创值

2464

金币

设计师

Rank: 8Rank: 8

积分
1839

社区居民社区明星忠实会员

发表于 2010-09-12 21:16:08 | 显示全部楼层
又免费,又专业。很好!  
      
        发图滴同学,最好是  写上居住要求。比如家里的居住人数,房子大致的安排的基本想法。没有生活要求,设计师那是无法找到设计的依据,那就乱设计了。
回复

使用道具 举报

937

帖子

0

原创值

493

金币

装修大学_研究生

Rank: 5Rank: 5

积分
789

社区居民忠实会员

发表于 2010-09-12 21:40:30 | 显示全部楼层
1 -1.JPG

            辛苦各位帮我设计  谢谢  一家三口 两人是教育单位的 爱看书 一个小女孩  10岁 在学琴(课余爱好) 老爸老妈偶尔过来 希望自己的房子环保 简洁  明亮 空间大 不喜欢吊顶  雨天好在客餐厅活动  
业主信息表
IDzwdzhang
装修形式全包 半包 清包   
装修风格现代欧式 混搭其他
客厅铺地板还是瓷砖地板 瓷砖    
是否需要环绕音响     
是否需要吧台     
是否接受开放式厨房     
是否需要淋浴房     
是否需要独立书房     
是否每个房间需要网线是√     
是否每个房间需要电话是√     
卫生间是否干湿分区    
其他要求隔墙柜一边一半  不设计电视
注:在所选项后标记“√”



      房子123平米 10楼  硬装5--6万
回复

使用道具 举报

7878

帖子

0

原创值

3159

金币

荣誉版主

积分
7785

社区居民社区明星终身成就奖宣传大使奖优秀斑竹奖原创先锋奖忠实会员最爱沙发社区劳模原创达人

 楼主| 发表于 2010-09-12 23:18:05 | 显示全部楼层
引用第5楼zwdzhang于2010-09-12 21:40发表的  :

            辛苦各位帮我设计  谢谢  一家三口 两人是教育单位的 爱看书 一个小女孩  10岁 在学琴(课余爱好) 老爸老妈偶尔过来 希望自己的房子环保 简洁  明亮 空间大 不喜欢吊顶  雨天好在客餐厅活动  


.......

我们会根据申报人数的多少
申报的户型
确定讲解实例户型的
届时会提前通知
回复

使用道具 举报

228

帖子

0

原创值

23

金币

大三_装修里手

Rank: 3Rank: 3

积分
196

社区居民

发表于 2010-09-13 10:12:06 | 显示全部楼层
先占个楼,再慢慢上传

建筑面积135平米,使用面积105,,入户花园和阳台算半面积
预算全包12W

三口之家,孩子为男孩,很调皮,所以家里安全很重要。想到时候把父母接过来住。
喜欢上网,看书。
未命名.jpg
未命名1.jpg
回复

使用道具 举报

937

帖子

0

原创值

493

金币

装修大学_研究生

Rank: 5Rank: 5

积分
789

社区居民忠实会员

发表于 2010-09-13 11:43:16 | 显示全部楼层

回 6楼(nick) 的帖子

谢谢帅气的年轻的热情的版主
回复

使用道具 举报

16

帖子

0

原创值

0

金币

大一_装修新生

Rank: 1

积分
14

社区居民

发表于 2010-09-13 15:57:35 | 显示全部楼层
一家三口,孩子尚小,父母同住。要求书房能偶尔实现留宿亲戚朋友的功能。谢谢
回复

使用道具 举报

您需要登录后才可以回帖 登录 | 立即注册

本版积分规则