QQ登录    

08我家网

2023兔年大吉

哥装的不是修,是寂寞---挨踢宅男的装修之路

[复制链接]
  • 所在城市:
  • 所在小区:湘江世纪城
  •  
  • 装修类型:新房装修
  • 装修户型:四房
  •  
  • 装修方式:半包
  • 装修风格:现代简约
  •  
  • 装修预算:10万—20万
  • 开工时间:2010-11-11
  • 前期设计
  • 主体拆装
  • 水电
  • 泥工
  • 木工
  • 油漆
  • 成品安装
  • 软装配饰
  • 毕业
已装修历时5455

170

帖子

0

原创值

30

金币

大三_装修里手

Rank: 3Rank: 3

积分
154

社区居民

发表于 2010-11-12 21:00:34 | 显示全部楼层 |阅读模式
20101111上午1008分,随着一阵噼里啪啦的鞭炮声,正式塔上了装修之路。烟雾缭绕过后,很激动也很担心,激动的期待着装修后的成果,又担心装修道路上的坎坷。在不知道08论坛之前,我很傻很天真的认为装修和我买房一样的简单,看好楼盘户型谈好价格,OK,搞定!其实不然。中间有很多的讲究和学问。房子的买卖差不多是一口价,没得过硬的渠道和关系,价格是很难得讲下来,尤其是目前这种房价飙涨的时候,这是卖家市场。而装修的材料的水就深了,同样的东西同一个店子,不同的人去买上下差别就不是一点点了。这些东西慢慢扯,老规矩先大概介绍下。
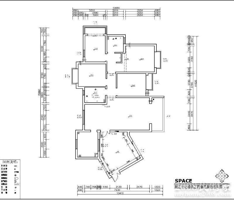
楼盘:湘江世纪城
面积:建筑面积141,套内120(四室两厅两卫一厨)
设计师:史工
装修风格:现代简约
半包价:5W7


先上张户型图:
户型图截图.jpg



世纪城的房子是蛮扎实,但是墙体都是承重墙,基本上没得敲。。。好几个地方想改动都不好改。。最后我就干脆原封不动。。。很郁闷的说。。。

170

帖子

0

原创值

30

金币

大三_装修里手

Rank: 3Rank: 3

积分
154

社区居民

 楼主| 发表于 2010-11-12 21:01:51 | 显示全部楼层
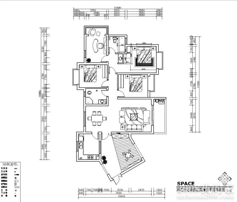
接下来上一张功能图:
发现没,入户花园比房内的任何一间房子都大。呵呵,设计师在这里拉了根直线,分了两个区域,左边的地面贴瓷砖,右边的地面提高几十公分,然后铺上防腐木地板,做一个休闲区域。除此之外,房间的设计也没有太多的亮点了。一切以简单为主
功能布局图.jpg
回复

使用道具 举报

170

帖子

0

原创值

30

金币

大三_装修里手

Rank: 3Rank: 3

积分
154

社区居民

 楼主| 发表于 2010-11-12 21:14:49 | 显示全部楼层
昨天因为论坛有点问题,老是登陆不上所以写了东西都存在电脑上今天才发
加上本人之前败了一个相机一个DV,都不敢买这些东西了,所以也木有拍照。
不过为了这个帖子,打算去借一个。呼呼
昨天就放了挂鞭炮,做了下大概的水电定位,装修手续也没办。
今天把手续办好,然后请地暖过来协调一下,另外厨房的水电定位由橱柜的
设计师把图子做好了。封阳台的也过来丈量了尺寸,交了500的定金。还得
等物业的审批才能下单做材料。
回复

使用道具 举报

1万

帖子

0

原创值

9607

金币

论坛元老

掰子姐

Rank: 15Rank: 15Rank: 15Rank: 15Rank: 15

积分
11275

吃货社区居民社区明星忠实会员最爱沙发新人进步奖幽默大师奖贴图大师奖原创先锋奖金点子奖特殊贡献奖宣传大使奖优秀斑竹奖终身成就奖灌水天才奖社区劳模原创达人

发表于 2010-11-12 21:22:10 | 显示全部楼层
抓紧写,还能赶上日记大赛~~
回复

使用道具 举报

170

帖子

0

原创值

30

金币

大三_装修里手

Rank: 3Rank: 3

积分
154

社区居民

 楼主| 发表于 2010-11-12 21:26:15 | 显示全部楼层
引用第3楼叽歪于2010-11-12 21:22发表的  :
抓紧写,还能赶上日记大赛~~
每天跟踪直播的呢。。装修预期要两个月,怕是赶不上吧。。
谢谢叽歪大大的评分。。我会坚持下来的。
回复

使用道具 举报

551

帖子

0

原创值

65

金币

装修大学_研究生

Rank: 5Rank: 5

积分
525
发表于 2010-11-12 21:26:25 | 显示全部楼层
哥你141的房子还装的是寂寞?太刺激人了
回复

使用道具 举报

1407

帖子

0

原创值

193

金币

装修大学_研究生

Rank: 5Rank: 5

积分
1275

社区居民

发表于 2010-11-12 21:54:25 | 显示全部楼层
"装修风格:现在简约"?
回复

使用道具 举报

412

帖子

0

原创值

27

金币

大四_装修达人

Rank: 4

积分
380
发表于 2010-11-12 21:59:21 | 显示全部楼层
我昨天去同事家看,也是临江苑,个人觉得这个户型好怪,主卧小主卫大,主卫好黑。
他们家弄个了酒柜,最搞笑的是如果他把墙修葺好,从厨房到餐厅来要绕一个大圈,非常不符合生活习惯。到处都是门,总觉得绕啊。
回复

使用道具 举报

170

帖子

0

原创值

30

金币

大三_装修里手

Rank: 3Rank: 3

积分
154

社区居民

 楼主| 发表于 2010-11-12 22:09:05 | 显示全部楼层
引用第5楼一头雾水于2010-11-12 21:26发表的  :
哥你141的房子还装的是寂寞?太刺激人了
一个还 木有脱光的搞装修,你说是寂寞不
回复

使用道具 举报

170

帖子

0

原创值

30

金币

大三_装修里手

Rank: 3Rank: 3

积分
154

社区居民

 楼主| 发表于 2010-11-12 22:09:46 | 显示全部楼层
引用第6楼哈蜊油于2010-11-12 21:54发表的  :
"装修风格:现在简约"?
谢谢指正。已修改
回复

使用道具 举报

您需要登录后才可以回帖 登录 | 立即注册

本版积分规则