QQ登录    

08我家网

2023兔年大吉

构筑舒适生活的点点滴滴,打造专属我的记忆;MADE IN 远卓&小曾曾——>美式走起

[复制链接]
  • 所在城市:长沙
  • 所在小区:北辰
  •  
  • 装修类型:新房装修
  • 装修户型:四房
  •  
  • 装修方式:半包
  • 装修风格:美式
  •  
  • 装修预算:20万—30万
  • 开工时间:2014-11-30
  • 前期设计
  • 主体拆装
  • 水电
  • 泥工
  • 木工
  • 油漆
  • 成品安装
  • 软装配饰
  • 毕业
已装修历时3994

287

帖子

0

原创值

508

金币

大三_装修里手

Rank: 3Rank: 3

积分
149
发表于 2014-11-13 21:09:18 | 显示全部楼层 |阅读模式
本帖最后由 妞妞tintin 于 2014-11-13 22:05 编辑

犹豫了很久要不要开贴,主要怕自己没有长性,虎头蛇尾。可是,那么多的纠结、兴奋、期待总得有个输出的地方,况且08聚集了那么多的同道中人,给自己的装修旅程留个纪念吧。


房型:4室2厅2卫1厨

风格:美式

建筑面积:198平

设计:小曾曾

全程管家:TINTIN

施工单位:远卓装饰

项目经理:涂队

客服:橙子

监理: 08网友

电梯直达

287

帖子

0

原创值

508

金币

大三_装修里手

Rank: 3Rank: 3

积分
149
 楼主| 发表于 2014-11-13 21:09:56 | 显示全部楼层
本帖最后由 妞妞tintin 于 2014-11-13 21:43 编辑

买房篇


    随着牛妞妞小盆友学龄一步步接近,我开始被迫寻觅合适的小学。突然发现现在住的小区附近根本没有合适的学校,然后对住了7年多的房子开始各种不满意,电梯老是抽风、小区水管老化自爆、停车环境恶劣、人车不分流等等。看房的过程及其简单,爸爸看了北辰后一句“能住这里,这辈子我就满足了”。
    所以买房、选房理由很简单——为孩子、为父母。
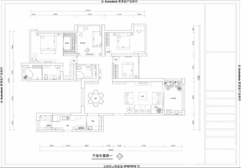
    户型图:
    QQ图片20141113214245.jpg

回复

使用道具 举报

287

帖子

0

原创值

508

金币

大三_装修里手

Rank: 3Rank: 3

积分
149
 楼主| 发表于 2014-11-13 21:10:00 | 显示全部楼层
本帖最后由 妞妞tintin 于 2014-11-13 21:50 编辑

设计篇

    曾经喜欢过的风格很多,有欧式、田园、美式乡村、东南亚。上次装修做的是简欧风格,7年了,仍然很耐看,美中不足的是本来房子就采光一般,整体咖色的色调就显得更加昏暗。次一定要弥补这个缺憾。最后定下来的风格是美式。我希望能在主这个房子十几年的岁月里,舒适和安心,并且尽量晚的对它厌倦。美式风格既精致又随意、既美观又舒适,完全切合了我对家的向往。就是他了!

    专业的事情给专业的人去处理,所以我找了独立设计师小曾曾。风格的把握交给他处理,当然也会融入我的元素,我的地盘我做主。

    图片会说话,一定要记得用图片和设计师进行交流。我手机下载了个叫HOUZZ的APP,有空就翻一翻,看上喜欢的赶紧收藏。还有篱笆网上也有不少美式风格图片,值得借鉴!
   上些我喜欢的效果图:
QQ图片20141113213544.jpg


QQ图片20141113213548.jpg


QQ图片20141113213554.jpg


QQ图片20141113213558.jpg


QQ图片20141113213601.jpg


QQ图片20141113213606.jpg


QQ图片20141113213449.jpg


QQ图片20141113213520.jpg


QQ图片20141113213530.jpg


QQ图片20141113213539.jpg


    目前平面设计图纸已经出来,效果图还在修改之中。
    强大的08同学,有什么好的建议,恳请指点
QQ图片20141113214245.jpg


QQ图片20141113214249.jpg


QQ图片20141113214253.jpg


QQ图片20141113214257.jpg


QQ图片20141113214301.jpg


QQ图片20141113214305.jpg


QQ图片20141113214257.jpg
回复

使用道具 举报

287

帖子

0

原创值

508

金币

大三_装修里手

Rank: 3Rank: 3

积分
149
 楼主| 发表于 2014-11-13 21:10:11 | 显示全部楼层
本帖最后由 妞妞tintin 于 2014-11-13 21:41 编辑

装修队伍选择篇一
   
    第一套房子装修选择的朋友推荐的装修队,在懵懂无知的状态下竟也顺顺当当的完成了,完全是人品爆发啊!而且!而且!08大神金主对7年前这套房子的装修工艺给予了相当高的评价!!!只是现在已经完全找不到小刘队长了,据说已经开了某某公司,只承接工装工程了。只能再次寻觅装修队,拼人品啦!
    有了前面的经验,说实话,我一点都不介意队伍是游击队或者是装修公司。我觉得选择到一个实在可靠、有责任心、有沟通能力的项目经理才是最最重要的。
    选择范围:
    1、设计师小曾曾家装修的专业游击队张师傅。看了设计师自己家装的房子,真心喜欢啊。简约小清新风格,所有柜子、柜门、房门、门套现场制作,算是比较精致的。最最最重要的是泥工的活儿漂亮,太漂亮啦,10*10的小砖贴的那叫一个平整,好像就是在瓷砖店铺贴在大芯板上一样,留缝也超级规整。(而且据小曾曾说,这个泥工师傅超级想事,有一天完工回家后觉得某一处地方有些问题,其实并不是自己的问题,而是会给后来的木工师傅带来不便。第二天一早,他就去工地把贴好的砖揭了下来,重新做。有这么负责的师傅,我觉得非常难能可贵)。我完全被惊艳到了,回家后心情久久不能平复,暗自下决定,就是他了!随后与张师傅的接触也颇让我动心,50多岁的人,比较实在。在没交任何诚意金的情况下,在长沙最热的8月,带着我看他用的材料购买店:高桥万象板材5S店、鲁班线条等等。
QQ图片20141113213926.jpg

QQ图片20141113213932.jpg

    2、表弟家装修的HY号称只接大宅的Z队长(接私单)。全程看了弟弟家的公司半包装修,我是各种不满意:设计师(还号称是熟人)出了图纸就再也没有出现过;工期拖拉,师傅老是被调来调去,持续了整整近9个月;贵、真心贵,中途更换材料不能清晰告知所加费用情况,太不诚实;细节不忍直视。PASS

    3、为单位同事家装修的DYRS的某队长(接私单)。报价1500一平,虽然号称用的是DYRS的统一高档材料,仍然被我PASS了。
回复 回复(1)条

使用道具 举报

287

帖子

0

原创值

508

金币

大三_装修里手

Rank: 3Rank: 3

积分
149
 楼主| 发表于 2014-11-13 21:10:15 | 显示全部楼层
本帖最后由 妞妞tintin 于 2014-11-13 21:53 编辑

装修方式选择篇二
回复

使用道具 举报

287

帖子

0

原创值

508

金币

大三_装修里手

Rank: 3Rank: 3

积分
149
 楼主| 发表于 2014-11-13 21:10:26 | 显示全部楼层
回复

使用道具 举报

287

帖子

0

原创值

508

金币

大三_装修里手

Rank: 3Rank: 3

积分
149
 楼主| 发表于 2014-11-13 21:10:33 | 显示全部楼层
我来占个楼
.08wojia.com/thread-93389-1-1.html
回复

使用道具 举报

287

帖子

0

原创值

508

金币

大三_装修里手

Rank: 3Rank: 3

积分
149
 楼主| 发表于 2014-11-13 21:10:40 | 显示全部楼层
回复

使用道具 举报

287

帖子

0

原创值

508

金币

大三_装修里手

Rank: 3Rank: 3

积分
149
 楼主| 发表于 2014-11-13 21:10:47 | 显示全部楼层
我来占个本文出自08我家网:http://www.08wojia.com/thread-93389-1-1.html
回复

使用道具 举报

287

帖子

0

原创值

508

金币

大三_装修里手

Rank: 3Rank: 3

积分
149
 楼主| 发表于 2014-11-13 21:10:54 | 显示全部楼层
我来占个楼,ttp://www.08wojia.com/thread-93389-1-1.html
回复

使用道具 举报

您需要登录后才可以回帖 登录 | 立即注册

本版积分规则