QQ登录    

08我家网

2023兔年大吉
12
返回列表 发新帖

装修小白的懒人装修日记

[复制链接]

7346

帖子

0

原创值

2807

金币

荣誉版主

积分
6084

社区居民忠实会员最爱沙发社区明星社区劳模灌水天才奖

发表于 2015-01-14 09:41:02 | 显示全部楼层
这个日记果然比较懒,哈哈,就更新了一个开头呀
回复

使用道具 举报

78

帖子

0

原创值

85

金币

大二_装修学长

Rank: 2

积分
40
 楼主| 发表于 2015-01-26 11:43:23 | 显示全部楼层
开工!1月24日终于开工了!装修公司,橱柜公司,暖通公司一起到位,量尺的量尺,定位水电,等等……又根据实际情况进行了一些修改。然后到物业办手续。
物业说地面可以敲掉5公分……恩,这对于要做地暖的我们很重要,乖乖交钱吧。
下午装修公司过来做了一些清洁工作,然后铺上公司标志的保护层,老公说看上去很专业,而且有效率。
25日,物业把地面敲了,把客厅到阳台的门拆了。
妥妥的,等水电正式进场。
回复

使用道具 举报

78

帖子

0

原创值

85

金币

大二_装修学长

Rank: 2

积分
40
 楼主| 发表于 2015-01-26 11:46:28 | 显示全部楼层

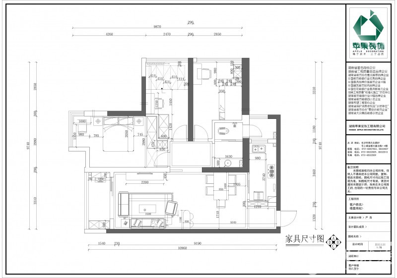
上个户型图看看

本帖最后由 rarelq 于 2015-1-26 11:50 编辑

上个户型图,不太会用,图片好像又没传上去?

户型图

户型图
回复

使用道具 举报

1万

帖子

0

原创值

9607

金币

论坛元老

掰子姐

Rank: 15Rank: 15Rank: 15Rank: 15Rank: 15

积分
11275

吃货社区居民社区明星忠实会员最爱沙发新人进步奖幽默大师奖贴图大师奖原创先锋奖金点子奖特殊贡献奖宣传大使奖优秀斑竹奖终身成就奖灌水天才奖社区劳模原创达人

发表于 2015-03-17 13:55:32 | 显示全部楼层
正月快过完了,楼主继续开工了没?多上点照片呀~
回复

使用道具 举报

5

帖子

0

原创值

9

金币

大一_装修新生

Rank: 1

积分
3
发表于 2015-03-29 21:39:05 | 显示全部楼层
静候楼主的帖子,我也是装修菜鸟一个啊。
回复

使用道具 举报

您需要登录后才可以回帖 登录 | 立即注册

本版积分规则