QQ登录    

08我家网

2023兔年大吉

【2015日记大赛最精打细算奖】80后女屌丝呕心沥血半年多,全职带崽和装修,18w搞定简约新中式125平

  [复制链接]

1106

帖子

0

原创值

2758

金币

装修大学_研究生

Rank: 5Rank: 5

积分
580
 楼主| 发表于 2015-03-04 10:52:58 | 显示全部楼层

写日记居然真的得奖啦

   回老家过年的这段时间,很久没来08更新了,日记都长草啦!让我意外又惊喜的是,年前写的帖子真的得奖啦,念念不忘的青花瓷套装真的可以抱回家了哦!真是太开森啦!在这里我非常感谢08的版主和网友对我的鼓励和肯定啊!
实在忍不住要晒晒奖品啦!  
2015年装修日记月赛第一期(1,2月) 获奖名单
ID
篇数
分值
日记分
总分
大浪
10
50
46
96
纪风
10
50
45
95
凉皮凉帽
10
50
43
93
Damaomao
7
40
43
83
爱螃蟹的妮子
7
40
42
82
流觞
4
30
47
77


回复 收藏

使用道具 举报

1106

帖子

0

原创值

2758

金币

装修大学_研究生

Rank: 5Rank: 5

积分
580
 楼主| 发表于 2015-03-04 13:51:50 | 显示全部楼层

平面设计方案新鲜出炉,请大家帮我参考参考

本帖最后由 凉皮凉帽 于 2015-3-6 17:06 编辑

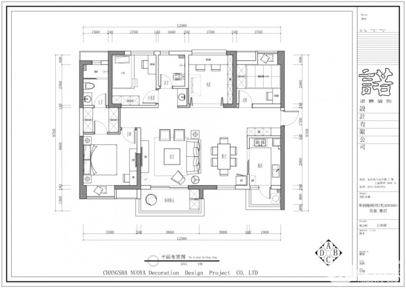
帖子写了这么久,终于要上户型图了,下面是开发商的原始布局图:
原始户型图.jpg


经过和设计师N次沟通,我家的平面设计方案如下:似乎还不是很满意,估计还会被我折腾;
设计图.jpg
平面设计图.jpg


还请坛子里的高手多给我提建议哦!



回复 收藏 回复(1)条

使用道具 举报

5201

帖子

0

原创值

6560

金币

管理员

Rank: 20Rank: 20Rank: 20Rank: 20Rank: 20

积分
4270

社区居民新人进步奖原创达人

发表于 2015-03-04 16:17:59 | 显示全部楼层
恭喜凉皮亲得奖啦!再接再厉哦!
回复

使用道具 举报

5201

帖子

0

原创值

6560

金币

管理员

Rank: 20Rank: 20Rank: 20Rank: 20Rank: 20

积分
4270

社区居民新人进步奖原创达人

发表于 2015-03-04 16:18:29 | 显示全部楼层
凉皮凉帽 发表于 2015-3-4 13:51
帖子写了这么久,终于要上户型图了,下面是开发商的原始布局图:

经过和设计师N次沟通,我家的平面 ...

原始布局图太小哒
那个,更新的平面设计图看不到哦!请重新上传哦!
回复 回复(2)条

使用道具 举报

915

帖子

0

原创值

1105

金币

大四_装修达人

Rank: 4

积分
470
发表于 2015-03-05 10:56:00 | 显示全部楼层
只看得到原始布局图哦~~不过你们家的主卧跟我的格局好像啊~~~
回复

使用道具 举报

1106

帖子

0

原创值

2758

金币

装修大学_研究生

Rank: 5Rank: 5

积分
580
 楼主| 发表于 2015-03-05 11:26:21 | 显示全部楼层
蔚蓝 发表于 2015-3-4 16:18
原始布局图太小哒
那个,更新的平面设计图看不到哦!请重新上传哦!

我重新传了几次也没成功,这是为什么呢?
回复 回复(1)条

使用道具 举报

5201

帖子

0

原创值

6560

金币

管理员

Rank: 20Rank: 20Rank: 20Rank: 20Rank: 20

积分
4270

社区居民新人进步奖原创达人

发表于 2015-03-05 11:42:12 | 显示全部楼层
凉皮凉帽 发表于 2015-3-5 11:26
我重新传了几次也没成功,这是为什么呢?

你把照片裁剪下,可能是太大了传不了哦!
回复

使用道具 举报

1106

帖子

0

原创值

2758

金币

装修大学_研究生

Rank: 5Rank: 5

积分
580
 楼主| 发表于 2015-03-05 18:06:36 | 显示全部楼层
蔚蓝 发表于 2015-3-4 16:18
原始布局图太小哒
那个,更新的平面设计图看不到哦!请重新上传哦!

现在可以看到了吗?为了上传这两张照片,我是打印出来又用手机拍照再上传,在编辑帖子的时候可以正常显示了,但是为了我自己点开帖子去看,就总是显示正在加载。。。。。
回复 回复(1)条

使用道具 举报

5201

帖子

0

原创值

6560

金币

管理员

Rank: 20Rank: 20Rank: 20Rank: 20Rank: 20

积分
4270

社区居民新人进步奖原创达人

发表于 2015-03-06 09:15:23 | 显示全部楼层
凉皮凉帽 发表于 2015-3-5 18:06
现在可以看到了吗?为了上传这两张照片,我是打印出来又用手机拍照再上传,在编辑帖子的时候可以正常显示 ...

现在可以看到了,辛苦辛苦了!我加你qq,告诉你怎么处理图片啊~
回复

使用道具 举报

342

帖子

0

原创值

619

金币

大三_装修里手

Rank: 3Rank: 3

积分
173
发表于 2015-03-07 20:44:36 | 显示全部楼层
分享美女的经验
回复 回复(1)条

使用道具 举报

您需要登录后才可以回帖 登录 | 立即注册

本版积分规则