QQ登录    

08我家网

2023兔年大吉

回归初心选择YZ,开启我的漫漫装修之路。(泥工师傅进场外加新装王力防盗门)

[复制链接]

111

帖子

0

原创值

214

金币

大三_装修里手

Rank: 3Rank: 3

积分
59
 楼主| 发表于 2015-06-23 11:29:27 | 显示全部楼层
本帖最后由 浅草青青 于 2015-7-17 12:28 编辑

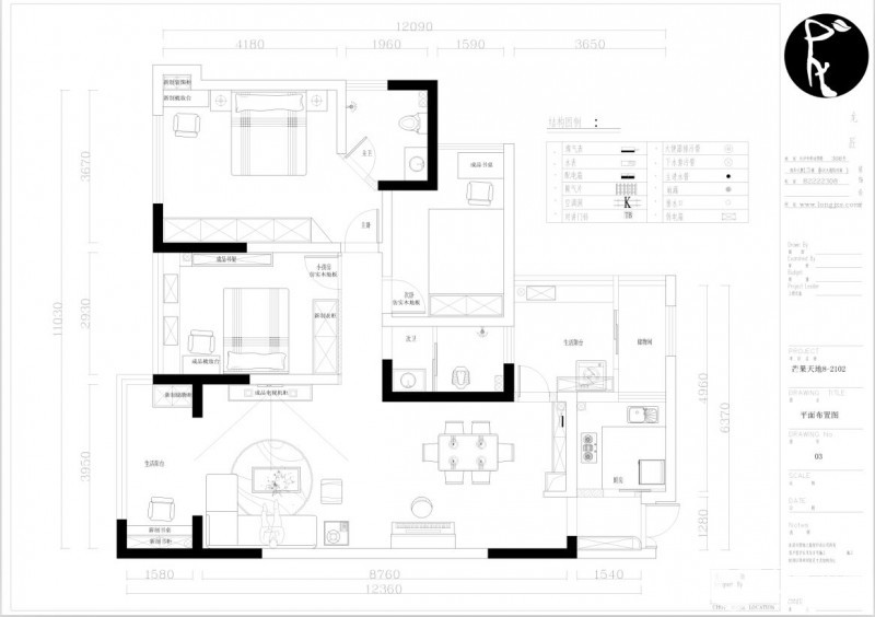
    设计图兼吐槽篇

    很久没有更新日记了,原因有两个,一个是碰到了让人觉得恶心郁闷并糟糕的事,主观意愿上选择了回避,二就是前段时间非常忙,双重压力之下没有了更新的动力。今天开始,鼓励自己要加油,重新开记本应快乐的装修之路!
    前面的贴子说起过我是个非常纠结的人,纠结并不是件好事,因为纠结到最后不得不自暴自弃的时候就会搞砸很多事,典型的NO ZUO NO DIE。。。。。。
    4月底的时候,我纠结好了装修公司,压根就不是前面提起的三个装修公司,说来话长,这个新找的装修公司叫龙匠装饰,如果不是因为家中嫂子的原因,我和大家一样压根没有听说过这个名字。这个公司的老板是我老公嫂子的同学,十年前她供职于MD装饰的时候替我装修了现在住的这套房子,嫂子家的新房前年装修也是找的她,基于对朋友的信任,基于对现在住的这套房子装修质量的认同,我纠结了两个多月的装修队伍的问题在当时得到了结果,就是和龙匠装饰签了合同出了设计方案,开始了崩溃的血泪史

附上图纸 QQ图片20150623113046.jpg


回复 收藏

使用道具 举报

1万

帖子

10

原创值

1万

金币

装修大学_教授

Rank: 7Rank: 7Rank: 7

积分
5360

社区居民最爱沙发社区明星

发表于 2015-06-24 08:18:44 | 显示全部楼层
楼主加油更新啊
回复

使用道具 举报

1万

帖子

0

原创值

9607

金币

论坛元老

掰子姐

Rank: 15Rank: 15Rank: 15Rank: 15Rank: 15

积分
11275

吃货社区居民社区明星忠实会员最爱沙发新人进步奖幽默大师奖贴图大师奖原创先锋奖金点子奖特殊贡献奖宣传大使奖优秀斑竹奖终身成就奖灌水天才奖社区劳模原创达人

发表于 2015-06-24 11:00:36 | 显示全部楼层
老公嫂子的同学……这关系够远的~装修中总有这样那样的问题,能解决就好,坚持住!
欢迎楼主回归,
回复

使用道具 举报

27

帖子

0

原创值

92

金币

大一_装修新生

Rank: 1

积分
14
发表于 2015-07-08 13:25:24 | 显示全部楼层
就选美式吧  很适合
回复

使用道具 举报

42

帖子

0

原创值

89

金币

禁止发言

积分
21
发表于 2015-07-15 14:56:59 | 显示全部楼层
提示: 作者被禁止或删除 内容自动屏蔽
回复

使用道具 举报

31

帖子

0

原创值

92

金币

大一_装修新生

Rank: 1

积分
16
发表于 2015-07-15 18:12:13 | 显示全部楼层
风格选的好漂亮
回复

使用道具 举报

111

帖子

0

原创值

214

金币

大三_装修里手

Rank: 3Rank: 3

积分
59
 楼主| 发表于 2015-07-16 08:44:08 | 显示全部楼层
谢谢大家的鼓励,没想到还有人在关心这个帖子,哈哈,前几天家里有事所以又偷懒没更新了,今天加油多更一点
回复

使用道具 举报

111

帖子

0

原创值

214

金币

大三_装修里手

Rank: 3Rank: 3

积分
59
 楼主| 发表于 2015-07-16 10:22:50 | 显示全部楼层
本帖最后由 浅草青青 于 2015-7-17 09:38 编辑

让人糟心的水电改造第一回目


2015年5月9日,星期六,睛,万年历上写着宜拆卸动土,于是我家的装修第一步在那一天正式迈出了,一个星期后,龙匠的监理打电话告诉我,可以装客厅的风管机,并且可以水电验收了,我兴高采烈的在工地上候了一整天,做为装修小白的我,看着家里的水电改造越来越觉得不对劲,于是随手用手机拍了几张照片放到网上向朋友们请教,这一下,大家纷纷看出问题来了,给我指出哪里哪里怎么不对,先上图给大家看看吧。


IMG_3652.JPG
IMG_3654.JPG
IMG_3657.JPG
IMG_3658.JPG
IMG_3664.JPG
IMG_3673.JPG
IMG_3758.JPG
IMG_3766.JPG
IMG_3779.JPG
IMG_3663.JPG






热心的网友们帮我看出了问题所在:
一、大量使用黄蜡管代替线管
二、开槽没有达到横平竖直
三、底盒没有锁扣
四、部分线没穿到底盒
五、顶上不有三通盒
大家说第一到第四个问题是影响到后期的维修,会导致强弱电线抽不出来,第五个问题涉及到安全问题,三通盒是阻燃的,装了三通盒有明火时会起到一个保护作用。

谢谢强大的网友们,对于一个装修小白啥也不懂的我来说,这些话我只能原封不动的全回给了龙匠装饰的老板和监理,然后奇葩的事情来了,我打电话给他们监理说请按照标准整改,他回我一句:按什么标准整改?
此处我内心爆粗口省略两万字!!你个破公司连个标准都不知道你装修个大头鬼啊!!!
为了避免更大的损失,我直接和龙匠的老板撕逼了,前期付了54%的款项给她,她居然用有的是时间和我耗来威胁我。。。。。。
我和老公都是属于怕麻烦的那种人,她有时间和我耗,但我可不想把大好光阴浪费在和这种垃圾人计较上面,在预算本来就紧张的情况下,我们毅然决定早点告别这糟心事,就当被偷了一样损失了1W5K块(含设计费3800)和龙匠解了约。。。。。。。



回复 收藏

使用道具 举报

1万

帖子

628

原创值

1万

金币

荣誉版主

积分
8155

社区居民忠实会员社区劳模最爱沙发社区明星

发表于 2015-07-16 11:15:39 | 显示全部楼层
这个水电看着也是蛮醉的。后续整改了没
回复 回复(1)条

使用道具 举报

111

帖子

0

原创值

214

金币

大三_装修里手

Rank: 3Rank: 3

积分
59
 楼主| 发表于 2015-07-17 09:32:24 | 显示全部楼层
芹菜 发表于 2015-7-16 11:15
这个水电看着也是蛮醉的。后续整改了没

没有整改,直接找人重做了
回复

使用道具 举报

您需要登录后才可以回帖 登录 | 立即注册

本版积分规则