QQ登录    

08我家网

2023兔年大吉

广羽人彡的贷款装修路

[复制链接]
  • 所在城市:长沙
  • 所在小区:怡海星城
  •  
  • 装修类型:新房装修
  • 装修户型:三房
  •  
  • 装修方式:半包
  • 装修风格:中式
  •  
  • 装修预算:10万—20万
  • 开工时间:待定
  • 前期设计
  • 主体拆装
  • 水电
  • 泥工
  • 木工
  • 油漆
  • 成品安装
  • 软装配饰
  • 毕业
已装修历时3825

31

帖子

0

原创值

144

金币

大一_装修新生

Rank: 1

积分
17
发表于 2015-05-05 21:56:43 | 显示全部楼层 |阅读模式
本帖最后由 crystaljuan 于 2016-1-30 17:31 编辑

本来计划四月中旬左右就开工的,但是家里突然出了点事,装修就要暂缓一阵子了。按惯例本该说说买房的经过,但是我觉得这个既然是写装修日记的,主要是装修的过程,买房经过就不啰嗦了。年轻人现在买房不容易,付了首付,手上基本上就没有钱了,所以后期的装修都是全额先贷
我是装修小白,08网也是听朋友说的,然后就上百度搜了一下,发现里面可以学到很多东西,08网果然是人才辈出。房子买好了,接下来就是怎么装修了,要装修成什么风格?这些对我这个第一次装修的人来说是很期待的。我是自主创业,平时都很忙,就想着设计和装修一体,这样就会少很多麻烦事,也省心点。装修前也看了很多的装饰公司,后来听说一米装饰不错,就去了一米装饰。选择一米装饰主要是说他们的施工不错,就交了几千大洋的押金,后期出了平面图。当我看到平面图的时候,我真的很失望,基本上是和户型图上的布局一样,没有改动什么,户型的缺点也没有优化,客厅还是看着那么不舒服,整体的感觉很凌乱。一米施工虽然不错,但是在设计上还是差的太多。后面沟通了一两次,修改的也还是令我不满意,也没有达到我的要求。后面实在是不满意了,就开始重新找设计。先在淘宝上随便逛了下,看到了品蓝设计工厂,点进去看了装修的图纸,看着甚是喜欢,觉得很不错,和客服聊了下,竟然在长沙有实体店,就约了个时间过去。后来知道品蓝设计工厂就是08网里的口碑设计师刘耀成下面的公司,但是刘大师的设计费是很贵的,像我这种装修都要贷款的人,就只能看看了。不过我相信品蓝设计工厂有刘大师在,下面的设计师也是不错的。毕竟是跟着刘大师混的。到了品蓝设计工厂的实体店,客服给我推荐了一位设计师——千里莺。首先我们简单聊了下,然后我拿出了一米装饰设计的平面图,千里莺设计师看了之后,提出了很多很好的建议,我很满意,我们沟通的也很愉快,不仅达到了我的要求,甚至超过我要的效果,专业的就是不一样。了解了之后,我需要先回去和老婆商量一下,准备第二天再来。今天先写到这,明天再继续...


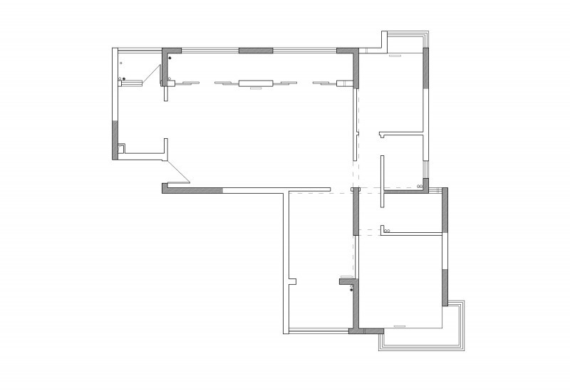
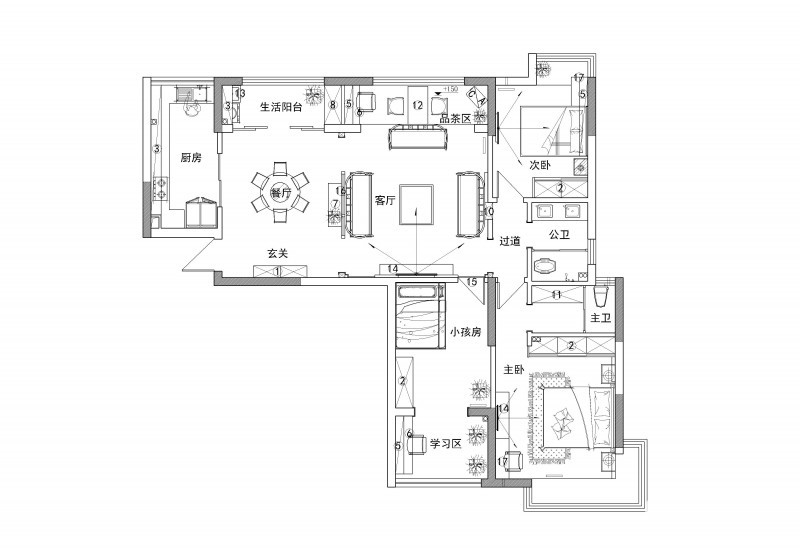
好久没有来了,不想烂尾呀。先把原始图和平面图发上来,大家可以看看。

原始结构图

原始结构图

平面布置图

平面布置图

106

帖子

0

原创值

213

金币

大三_装修里手

Rank: 3Rank: 3

积分
55
发表于 2015-05-05 22:19:41 | 显示全部楼层
  顶一下写日记的同学,是个苦差使呀~
回复

使用道具 举报

963

帖子

0

原创值

1632

金币

大四_装修达人

Rank: 4

积分
499

社区居民

发表于 2015-05-05 23:08:27 | 显示全部楼层
支持开日记~我也准备开了~
回复

使用道具 举报

1万

帖子

10

原创值

1万

金币

装修大学_教授

Rank: 7Rank: 7Rank: 7

积分
5360

社区居民最爱沙发社区明星

发表于 2015-05-05 23:14:03 | 显示全部楼层
祝装修顺利
回复

使用道具 举报

5201

帖子

0

原创值

6560

金币

管理员

Rank: 20Rank: 20Rank: 20Rank: 20Rank: 20

积分
4270

社区居民新人进步奖原创达人

发表于 2015-05-06 09:21:54 | 显示全部楼层
liao先森,上个户型图瞧瞧呗~
回复

使用道具 举报

5090

帖子

0

原创值

6809

金币

荣誉版主

积分
3799

社区居民最爱沙发原创达人新人进步奖社区劳模

发表于 2015-05-06 09:24:47 | 显示全部楼层
期待你的装修故事哦~
回复

使用道具 举报

1万

帖子

628

原创值

1万

金币

荣誉版主

积分
8155

社区居民忠实会员社区劳模最爱沙发社区明星

发表于 2015-05-06 10:23:00 | 显示全部楼层
好的设计师成功装修的第一步,恭喜楼主找到满意的设计。接下来就期待完美的施工故事了
回复

使用道具 举报

2383

帖子

0

原创值

1283

金币

装修大学_研究生

Rank: 5Rank: 5

积分
1258
发表于 2016-01-20 16:49:28 | 显示全部楼层
居然烂尾了,好可惜
回复

使用道具 举报

31

帖子

0

原创值

144

金币

大一_装修新生

Rank: 1

积分
17
 楼主| 发表于 2016-01-30 17:25:32 | 显示全部楼层
不想烂尾,今天来传点图片
回复

使用道具 举报

您需要登录后才可以回帖 登录 | 立即注册

本版积分规则