|
当初选这套房子的时左选右挑,最后本着方便就近的原则,还是华城选了套小三房。买完之后就开始琢磨要怎么装修,找哪里装修。我本身上班忙,每周只休息一天,父母亲又要帮忙带小宝,实在没有那么多精力去监督工地,还是只有挑选一家认真负责、价格合适的装修公司来做,于是又开始到处打听什么装修公司比较靠谱。
偶然间看到小区群里有人推荐QSLX,看过装修照片,又实地去参观了,就有些心动,开始搜寻查看他们公司装修的案例。我们家一开始的想法是房子本身不大,做最简单的弄,现代简约风格,而巧手做出来的大部分都是美式或者简美,于是怀着一点小期待和一点不确定,就跟杨工联系上了。经过量房,设计师的意见是之前设想的一样——做现代简约。好吧,那基本上就敲定了,只是预算又往上走了~~~555555
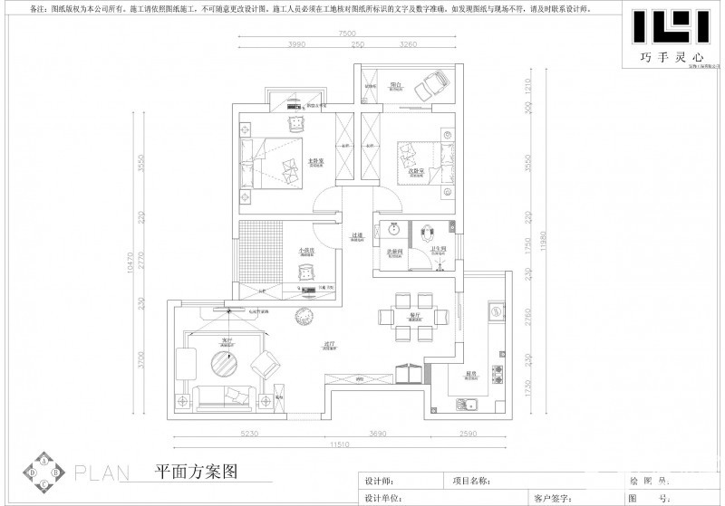
先上一张户型图
6月18日是个好日子,正式开工!
(我上班没在场,照片就木得了)
7月4日水电走完,继续上图
各种颜色的管道整整齐齐的纵横交错,看着很专业的感觉有没有!我这会儿是觉得找对了。
只是最后这个厕所下水弯弯扭扭,有点儿担心会不会容易堵塞哦~~~师傅说没关系的。也许我是瞎操心?
|
|