QQ登录    

08我家网

2023兔年大吉

117平新中式温馨小家

[复制链接]
  • 所在城市:
  • 所在小区:中建芙蓉嘉苑
  •  
  • 装修类型:新房装修
  • 装修户型:三房
  •  
  • 装修方式:半包
  • 装修风格:其它
  •  
  • 装修预算:10万—20万
  • 开工时间:2015-10-25
已装修历时3654

22

帖子

0

原创值

53

金币

大一_装修新生

Rank: 1

积分
12
发表于 2015-10-19 17:21:20 | 显示全部楼层 |阅读模式
装修前准备工作
交房已经将近半年了,开发商整改完成后终于要准备装修了。通过与设计师的沟通和参考邻居家的设计方案,上周终于把家里的设计定稿了。首先来晒晒我家的设计图吧。

22

帖子

0

原创值

53

金币

大一_装修新生

Rank: 1

积分
12
 楼主| 发表于 2015-10-19 17:30:03 | 显示全部楼层

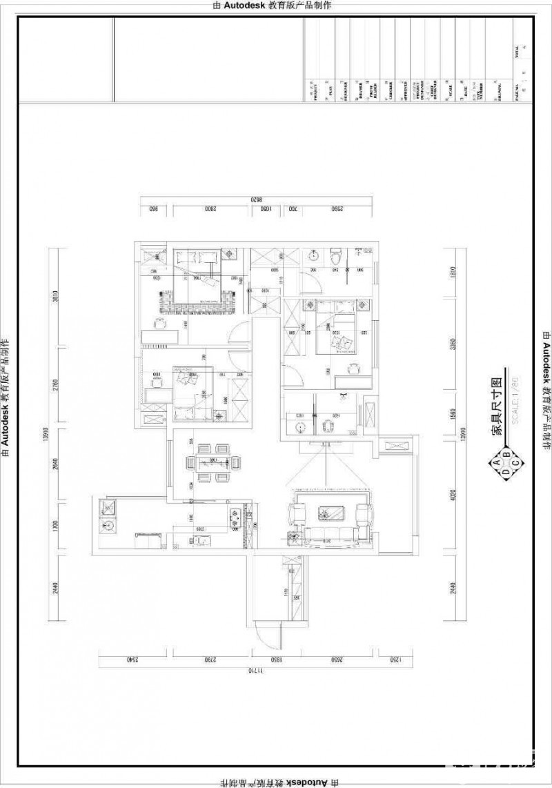
设计图纸

刚刚图片没传上去,设计图:

设计图.jpg
回复 收藏

使用道具 举报

1万

帖子

0

原创值

9607

金币

论坛元老

掰子姐

Rank: 15Rank: 15Rank: 15Rank: 15Rank: 15

积分
11275

吃货社区居民社区明星忠实会员最爱沙发新人进步奖幽默大师奖贴图大师奖原创先锋奖金点子奖特殊贡献奖宣传大使奖优秀斑竹奖终身成就奖灌水天才奖社区劳模原创达人

发表于 2015-10-19 18:06:40 | 显示全部楼层
欢迎来到装修日记版记录自己的装修故事!
户型很好啊,厨房和餐厅很爽!
回复

使用道具 举报

22

帖子

0

原创值

53

金币

大一_装修新生

Rank: 1

积分
12
 楼主| 发表于 2015-10-19 20:05:05 来自手机 | 显示全部楼层
谢谢,就是家里的空调位置不好摆,现在很头疼
回复 回复(1)条

使用道具 举报

170

帖子

0

原创值

388

金币

大三_装修里手

Rank: 3Rank: 3

积分
86
发表于 2015-10-20 15:22:54 | 显示全部楼层
joyuhui 发表于 2015-10-19 20:05
谢谢,就是家里的空调位置不好摆,现在很头疼

如果做风管机,藏在吊顶里,就不用担心不好摆的问题了
回复 回复(1)条

使用道具 举报

4871

帖子

0

原创值

518

金币

管理员

Rank: 20Rank: 20Rank: 20Rank: 20Rank: 20

积分
2622
发表于 2015-10-20 16:29:26 | 显示全部楼层
户型不错哦!期待更多的更新!
回复 回复(1)条

使用道具 举报

22

帖子

0

原创值

53

金币

大一_装修新生

Rank: 1

积分
12
 楼主| 发表于 2015-10-22 16:55:07 | 显示全部楼层
Rainyqiqi 发表于 2015-10-20 15:22
如果做风管机,藏在吊顶里,就不用担心不好摆的问题了

主要是家里梁多,吊了顶家里太矮了。算了,现在不纠结了,就客餐厅吊顶吧,其他卧室直接买挂机了。
回复

使用道具 举报

22

帖子

0

原创值

53

金币

大一_装修新生

Rank: 1

积分
12
 楼主| 发表于 2015-10-22 16:55:52 | 显示全部楼层
瑞都默默 发表于 2015-10-20 16:29
户型不错哦!期待更多的更新!

O(∩_∩)O哈哈~,好滴,周日就要开工了,希望年前能搞完。
回复

使用道具 举报

22

帖子

0

原创值

53

金币

大一_装修新生

Rank: 1

积分
12
 楼主| 发表于 2015-10-22 17:13:38 | 显示全部楼层

主材准备

       家里马上就要开工了,和老公还有未出生的宝宝一起去看了好几家材料,准备这周末再去参加郁金香广场和万家丽广场的促销活动。根据朋友的推荐,瓷砖我们比较倾向马可波罗和东鹏的,对比了实体店和网店的价格,相差比较大,到时看看活动价再决定在哪里买。木地板我们看了大自然的,他家有全实木,多层实木和复合地板,因为宝宝快要出生了,还是想选择更环保的。但是全实木的确实有点贵,最便宜的也要300左右/平,再加上安装费也要近400元/平,不过他们说25号的活动是厂家活动,力度会比较大,希望给力一点。O(∩_∩)O~
回复 收藏 回复(1)条

使用道具 举报

170

帖子

0

原创值

388

金币

大三_装修里手

Rank: 3Rank: 3

积分
86
发表于 2015-10-26 00:37:34 | 显示全部楼层
joyuhui 发表于 2015-10-22 17:13
家里马上就要开工了,和老公还有未出生的宝宝一起去看了好几家材料,准备这周末再去参加郁金香广场 ...

开工前多看看材料好,开工后就是被推着走了
回复

使用道具 举报

您需要登录后才可以回帖 登录 | 立即注册

本版积分规则