QQ登录    

08我家网

2023兔年大吉

【2018晒家大赛二等奖】清包要效果也要省钱-独立设计师-167平不一样的新中式(更新柜门安装效果和热水循...

  [复制链接]

15

帖子

0

原创值

76

金币

大一_装修新生

Rank: 1

积分
8
发表于 2018-06-21 14:42:20 来自手机 | 显示全部楼层
清包大神,学习一下
回复

使用道具 举报

1888

帖子

250

原创值

3787

金币

装修大学_研究生

入住新家!!

Rank: 5Rank: 5

积分
1384

社区居民忠实会员社区明星

 楼主| 发表于 2018-06-21 16:02:08 | 显示全部楼层

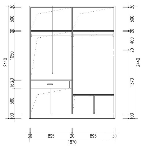
26、【设计】深夜再改衣柜方案

本帖最后由 空气 于 2018-6-25 21:27 编辑

       接着上篇的探店武汉宜家当天晚上修改了衣柜方案,今天就特别想和大家分享下这个方案。其实衣柜方案一直是我们纠结一个项目,1、挂裤子的到底要不要,之所以纠结,因为觉得有挂裤子的地方好像是国际惯例,但是我们家现在的挂裤子区没用过一次,所以最后决定是取消这块。2、衣柜里面要不要抽屉,我个人觉得有个抽屉还是会好些,随着小孩子慢慢长大,他们也会有个小秘密什么的,放在抽屉里面会好些。我们家现在柜子里面的抽屉,就放着我和老婆的各种证件。3、挂衣区的高度问题,刚一开始是考虑小孩子小,怕他们够不着,所以挂衣区都放在了最下面。4、叠衣区要几个,这个要根据个人习惯把,因为现在我家的叠衣区一团麻,所以开始的设计方案是叠衣区在上面,打算就是放一些过季的不穿的衣服,因为叠好的衣服随便一拉就乱了。结合设计师的设计,然后我们家衣柜定稿的设计方案是这样的(这里说下我们家除了主卧,其他三件卧室的柜子都是一样的):
                微信图片_20180621155628.png
          微信图片_20180621155614.png

   因为主卧柜子比较大,索性就算了,没有做修改。其实改柜子方案的初衷就是为了多个放拉篮的地方,抖音上面不是都说了吗,叠衣服靠不住,卷起来也靠不住,能解决大乱的方案是放拉篮。所以我们家的柜子方案就变成了下面的样子,孩子总会长大,以后就能自己够着衣服了,但是如果让孩子独立拿衣服的话,不知道柜子了会乱成什么样子,我老婆会疯。所以必须要有拉篮!!!!(照片弄的太丑,请大家看明白意思就可以了,另外有好的修改方案的小伙伴,请火速联系我,现处于木工没进场的阶段
                                 24.jpg

回复 收藏

使用道具 举报

202

帖子

0

原创值

495

金币

大三_装修里手

Rank: 3Rank: 3

积分
101
发表于 2018-06-21 16:05:42 | 显示全部楼层
大家有需要的也可以去了解下
回复

使用道具 举报

141

帖子

0

原创值

272

金币

大三_装修里手

Rank: 3Rank: 3

积分
75

社区居民

发表于 2018-06-21 16:41:07 | 显示全部楼层
回复帖子看美图
回复

使用道具 举报

31

帖子

0

原创值

83

金币

大一_装修新生

Rank: 1

积分
16
发表于 2018-06-21 17:08:51 | 显示全部楼层
学习学习 观摩观摩 哈哈
回复

使用道具 举报

149

帖子

0

原创值

139

金币

大三_装修里手

Rank: 3Rank: 3

积分
100
发表于 2018-06-22 16:31:53 | 显示全部楼层
看看如何省钱
回复

使用道具 举报

230

帖子

0

原创值

656

金币

大三_装修里手

Rank: 3Rank: 3

积分
117
发表于 2018-06-22 16:38:39 | 显示全部楼层
看下价格是如何的
回复

使用道具 举报

825

帖子

50

原创值

1835

金币

大四_装修达人

Rank: 4

积分
430
发表于 2018-06-22 21:39:13 | 显示全部楼层
这省钱技能杠杠滴!你说你是不是金牛座的  
回复 回复(1)条

使用道具 举报

31

帖子

0

原创值

115

金币

大一_装修新生

Rank: 1

积分
16
发表于 2018-06-23 16:56:36 来自手机 | 显示全部楼层
我也想装新中式
回复

使用道具 举报

31

帖子

0

原创值

115

金币

大一_装修新生

Rank: 1

积分
16
发表于 2018-06-23 22:52:09 来自手机 | 显示全部楼层
水电工和那个水压检测的工作人员可以介绍给我吗?我也想7月初装修,新中式,147平。在清包和半包中犹豫。看到楼主的详细分享,有点对各种操心感到害怕,同时也会各种细节深感佩服,对清包这条路存在更多期待。
回复 回复(1)条

使用道具 举报

您需要登录后才可以回帖 登录 | 立即注册

本版积分规则