QQ登录    

08我家网

2023兔年大吉

低调的【Sally】温馨的家 当当当~~超喜欢的和室~~有经验分享

  [复制链接]

257

帖子

0

原创值

146

金币

大四_装修达人

Rank: 4

积分
224

社区居民

发表于 2012-02-10 23:20:06 | 显示全部楼层

Re:朵苗妈多快好省搞装修 166平五房 之 一楼上平面设计图喽~

看看隐藏内容学习中
回复

使用道具 举报

207

帖子

0

原创值

209

金币

大三_装修里手

Rank: 3Rank: 3

积分
191

社区居民

发表于 2012-02-11 11:59:02 | 显示全部楼层

Re:朵苗妈多快好省搞装修 166平五房 之 一楼上平面设计图喽~

学习学习
回复

使用道具 举报

574

帖子

0

原创值

134

金币

装修大学_研究生

Sally

Rank: 5Rank: 5

积分
534

社区居民

 楼主| 发表于 2012-05-26 23:12:57 | 显示全部楼层

Re:Sally家风格终于确定——东南亚  之 啥时能开工?只好拿设计

       俺家的装修迟迟没能开工。我的热情也犹如女人每个月的那几天,一阵一阵的。现在一切还只在图纸上。
        迟迟未开工的好处是,我总算知道我要把家“折腾”成什么样了——东南亚风情;

        榻榻米加入到我的家中,成为一个重要组成部分。至少对于我来说会比较重要,因为那将是我的书房。
        今天拿榻榻米来说事吧。
        到邻居家参观,一下子被榻榻米房吸引,觉得功能很多、实用。于是上网又搜索了不少内容,有了一下的想法:有立柜、有地台、有升降桌、还要有书桌。
        这是我自己画的设计图:

QQ截图20120608060248.png

QQ截图20120608055914.png


平面图
QQ截图20120608060030.png

QQ截图20120527083444.png

             和室D立面图


         和室C立面图

QQ截图20120527083512.png

         和室B立面图



最新出炉用自己木工做和室的预算:

1、木工(含立柜、地台、书桌、踏步)2530元;
2、油漆(含立柜、地台、书桌、踏步)1270元;
3、板材(16块指接板、两块背板、其他)约3700元;
4、外购(手动升降机、福司玛门、天袋、榻榻米、配件)约3500元;
合计约为12000元。

这么一算起来,自己做和室也不便宜呢!
QQ截图20120527083459.png
QQ截图20120608060009.png
回复

使用道具 举报

920

帖子

0

原创值

446

金币

装修大学_研究生

Rank: 5Rank: 5

积分
1004

社区居民忠实会员

发表于 2012-05-27 22:06:01 | 显示全部楼层

Re:无语的燃气表

引用第34楼ddmm于2012-01-27 16:34发表的 无语的燃气表 :


看看灰太翔家的燃气表,咋就那么是地方呢,555,羡慕嫉妒恨哪~~


.......
煤气表可以叫煤气公司的人来帮你移
回复

使用道具 举报

1195

帖子

0

原创值

600

金币

装修大学_研究生

Rank: 5Rank: 5

积分
1011

社区明星

发表于 2012-05-28 09:59:17 | 显示全部楼层

Re:Sally家风格终于确定——东南亚  之 啥时能开工?只好拿设计

你家也弄个和室的吗,建议可以去红星美凯龙多看看他们的样品间,最好带师傅去学习,因为很多师傅不专业,有些地方没想到。
回复

使用道具 举报

574

帖子

0

原创值

134

金币

装修大学_研究生

Sally

Rank: 5Rank: 5

积分
534

社区居民

 楼主| 发表于 2012-05-28 21:01:05 | 显示全部楼层

回 104楼(fenny) 的帖子

是的。准备弄个和室了。方便去大唐印象看么?不在他那做,还叫师傅去看,有点不好意思吧?呵呵
回复

使用道具 举报

574

帖子

0

原创值

134

金币

装修大学_研究生

Sally

Rank: 5Rank: 5

积分
534

社区居民

 楼主| 发表于 2012-05-28 21:02:50 | 显示全部楼层

回 103楼(紫紫妈妈) 的帖子

是在装修开工之前就要移好么?
回复

使用道具 举报

1191

帖子

0

原创值

160

金币

装修大学_研究生

Rank: 5Rank: 5

积分
1259

社区居民社区明星

发表于 2012-05-29 01:15:24 | 显示全部楼层

Re:Sally家风格终于确定——东南亚  之 啥时能开工?只好拿设计

哇塞,这个准备时间够长,哈哈~~~

我还说我没进场的人,开团开了三个,混成了半桶水,再看你,觉得还好啦,哈哈
回复

使用道具 举报

1195

帖子

0

原创值

600

金币

装修大学_研究生

Rank: 5Rank: 5

积分
1011

社区明星

发表于 2012-05-29 08:41:40 | 显示全部楼层

回 105楼(ddmm) 的帖子

好象在红星美凯龙,大唐印象,缘木轩都在那边,你可以带上你师傅去看看咯,不告诉他哪个是你师傅就可以,我觉得让师傅看下做起来会更好吧,我以前自己都看过很多次,结果还是有地方没想到。
回复

使用道具 举报

574

帖子

0

原创值

134

金币

装修大学_研究生

Sally

Rank: 5Rank: 5

积分
534

社区居民

 楼主| 发表于 2012-05-29 16:40:55 | 显示全部楼层

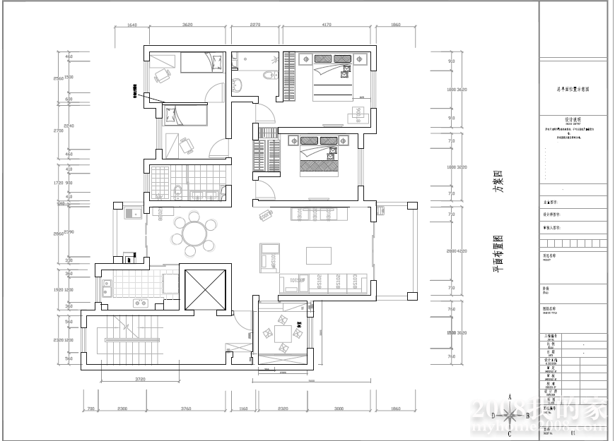
Re:Sally家东南亚风刮过来  之 上设计图

本帖最后由 ddmm 于 2015-3-5 14:50 编辑

为了装修,自学了CAD。
现在全套图纸都是自己画的。
呵呵,出师啦,lalala







QQ截图20120529163522.png
QQ截图20120529163522.png
QQ截图20120529163522.png
QQ截图20120529163522.png
QQ截图20120529163522.png
回复

使用道具 举报

您需要登录后才可以回帖 登录 | 立即注册

本版积分规则