|
|
楼主 |
发表于 2012-03-07 09:24:12
|
显示全部楼层
小鱼的小家
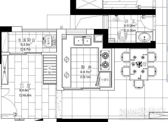
鉴于小鱼对我家那个厨房的爱恨交织,昨天晚上十点多偶的设计师还在改偶家的设计方案,小鱼只有三个要求:1.能封闭尽量封闭;2.封闭后采光还要好;3.解决我家冰箱没地方放的问题。所以,偶家兢兢业业的设计师又给出了个厨房方案
这个新的方案到是解决了我家厨房的所有问题,但是门开的方位有点怪怪的,另外放冰箱那边看样子是要砌墙啊,那样的话做饭和吃饭之间得多迂回啊,要不然就得像灰太狼家提到的一样,得在厨房和餐厅之间掏个洞,传菜用,问题是我这墙上是抽油烟机啊
设计师听小鱼牢骚了一顿后,很耐心的说,“厨房是小问题”明天出新的方案给你。“好的好的”我自己都有点嫌弃自己的举棋不定了。 |
|