QQ登录    

08我家网

2023兔年大吉

6月装修在幻想中起步

[复制链接]

217

帖子

0

原创值

209

金币

大三_装修里手

Rank: 3Rank: 3

积分
117
发表于 2014-05-31 13:55:17 | 显示全部楼层
先恭喜楼主再祝楼主装修顺利跟随LZ的幻想旅程
回复

使用道具 举报

978

帖子

0

原创值

1166

金币

装修大学_研究生

Rank: 5Rank: 5

积分
503

社区居民

发表于 2014-05-31 16:36:47 | 显示全部楼层
最后定下来的价钱是?
回复

使用道具 举报

2

帖子

0

原创值

4

金币

大一_装修新生

Rank: 1

积分
1
发表于 2014-06-16 22:24:43 | 显示全部楼层
亲  加油,看好你哦
回复

使用道具 举报

2

帖子

0

原创值

4

金币

大一_装修新生

Rank: 1

积分
1
发表于 2014-06-16 22:25:34 | 显示全部楼层
装修顺利 加油 加油
回复

使用道具 举报

205

帖子

0

原创值

239

金币

大三_装修里手

Rank: 3Rank: 3

积分
105
 楼主| 发表于 2014-06-16 22:27:37 | 显示全部楼层

6月装修在幻想中起步

本帖最后由 vjgeiu 于 2014-7-23 14:58 编辑

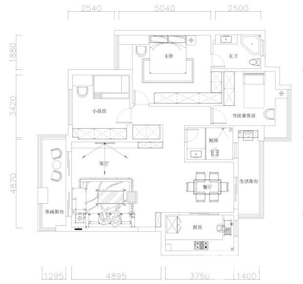
独立设计师:原树,确定平面图

      在等待房子交易的过程是漫长的,在这段时间我也没有闲着。考察装修公司,本来是要打算半包的,前前后后一共看了4家装修公司,NY RH YZ LB。NY 和RH都是在08网上看的,冲着08同学们的推荐。NY给我的感觉是很不错的,设计师出的方案也很满意,这个也是直接影响了我最后的定稿。做了预算,预算表也让我拿回来了 不得不说NY就是大气,得赞一个。如果不是因为其中种种还是很想找NY做的。第二个去的RH 也许是没有提前预约,到公司的时候正式中午,公司人也不多,前台随便推荐了个设计师,无奈设计师不是我的调调 气场不和,导致后面就没有后面了。后面2个公司都是做的比较大的,在某网站申请了免费量房出设计,平面图和预算,一个劲的跟我说公司怎么怎么好做了预算都比NY要低,但是预算也只是预算,怎么看都看不出我的装修到达要花多少钱,钱花在哪里。预算表也没有让拿走,我本就是一个多想的人,再加上装修公司这个猫腻就多,觉得不安心。
      几经周折,最后决定还是找独立设计师,本着向08各位前辈学习的心态,走上了清包的不归路。之所以找原树,一开始进入08 第一个接触的设计师是原树,第一个喜欢的作品也是原树的北辰三角州的现代风格,而他的名字也跟我喜欢的感觉一样,简单,清新,不做作。在经过了一系列的考虑后,觉得约上原树聊聊。
      设计一:之前的户型鞋柜位置不太好做,我是有买鞋的爱好,所以鞋子比较多,而且舍不得丢,所以在原本入户门左侧做隔断只能做小型的鞋柜是满足不了我的需求。所以原树帮我提供的方法是,讲入户门向左移,这样靠着厨房这面墙可以做正面鞋柜,尼玛,强大,心欢喜啊。
    设计二之前说过主卧想要一个衣帽间,原树也最初按照我的要求来,想了2个方案,可是最终都被否定,我喜欢宽敞通透的环境,房间本来就是很周正,硬是强加衣帽间会显得格局很紧凑,就这样在HH和家人的一致不赞同的情况下,我的衣帽间被缩成了两个衣柜,话说2个衣柜加起来也有5米,希望能够用。
      所以最后平面设计图


















QQ图片20140616221127.jpg
回复 收藏

使用道具 举报

205

帖子

0

原创值

239

金币

大三_装修里手

Rank: 3Rank: 3

积分
105
 楼主| 发表于 2014-06-26 20:19:30 | 显示全部楼层

6月装修在幻想中起步

本帖最后由 vjgeiu 于 2014-7-23 14:58 编辑

麻麻细雨中悄无声息的开工啦!
   我们开工既没有像大家一样选择吉日,也没有放鞭炮。看了最近的黄历,下一个吉日到来前离我们太远了,要到7月,7月实在是等不及了。我索性不信这些,直接开工。鞭炮呢,想起环保也就免了。就这样一大早我家HH早餐都顾不得吃冒着麻麻雨就跟着敲墙师傅开始工作了。
     9点当我到达小区楼下,就听到匡匡的声音,上楼一看主卧和次卧中间已经的墙已经快砸了一半了,话说速度够快啊! QQ图片20140626195144.jpg



     接下来就是移门洞,我家入户门进来就是客厅,没有做鞋柜的地方,做隔断呢,觉得放鞋子的空间太小。其实很羡慕别人家有一整面墙的鞋柜。所以YS为了满足我的要求,把门洞移向左边,右边挨着厨房的右边可以做个整面墙鞋柜。师傅小心翼翼的敲,既要考虑合理尺寸,又不门套敲坏。 QQ图片20140626195159.jpg



QQ图片20140626195206.jpg
移位后砌墙。看着感觉好好玩,像小时候搭积木,呵呵!




   装修才开始一天,就觉得精疲力尽,散包真的是锻炼人。光是买铲子,钳子等工具都跑了几趟。又去定沙子定水泥,幸好咱家小白〔白色电动车〕给力,在小区里里外外转来转去买东西还真是方便。
       今日消费:扫把铲子:28
铁丝钳子等工具:52
       沙子和水泥跑了附近几家建材店,根据前辈们的经验,找一家靠谱的,谈好价钱,交点定金,要多少拿多少。最后一起清算。
       对比了一下价钱最后沙子 240一车
坪塘水泥328一吨

   也不知道这个价钱到底是贵还是便宜。上一张水泥照片都说水泥假货多, QQ图片20140626195210.jpg






QQ图片20140626195144.jpg
回复 收藏 回复(1)条

使用道具 举报

142

帖子

0

原创值

315

金币

大三_装修里手

Rank: 3Rank: 3

积分
73
发表于 2014-06-26 22:05:00 | 显示全部楼层
新人贴,顶个,祝装修顺利
回复 回复(1)条

使用道具 举报

633

帖子

0

原创值

751

金币

大四_装修达人

Rank: 4

积分
319
发表于 2014-06-26 22:34:57 | 显示全部楼层
原树设计哦  很喜欢原树 不过我的户型真是不值那个设计费。。。。
回复 回复(1)条

使用道具 举报

205

帖子

0

原创值

239

金币

大三_装修里手

Rank: 3Rank: 3

积分
105
 楼主| 发表于 2014-06-27 14:51:44 | 显示全部楼层
雨下一整晚 发表于 2014-6-26 22:05
新人贴,顶个,祝装修顺利

谢谢,我会加油的
回复

使用道具 举报

205

帖子

0

原创值

239

金币

大三_装修里手

Rank: 3Rank: 3

积分
105
 楼主| 发表于 2014-06-27 14:52:23 | 显示全部楼层
甜龙 发表于 2014-6-26 22:34
原树设计哦  很喜欢原树 不过我的户型真是不值那个设计费。。。。

我的户型也比较简单,找个设计师 很多自己想不到的问题 设计师会提出比较中肯的意见
回复

使用道具 举报

您需要登录后才可以回帖 登录 | 立即注册

本版积分规则