QQ登录    

08我家网

2023兔年大吉

漫漫装修路。。。(我的新中式~~~~~毕业照)

[复制链接]

330

帖子

0

原创值

96

金币

大四_装修达人

Rank: 4

积分
280

社区居民

发表于 2010-09-17 22:22:42 | 显示全部楼层
楼主图片很漂亮,看好中式风格。
回复

使用道具 举报

867

帖子

0

原创值

996

金币

装修大学_研究生

Rank: 5Rank: 5

积分
744

社区居民忠实会员社区劳模

 楼主| 发表于 2010-09-17 22:29:20 | 显示全部楼层

未定的材料:
客卫、儿童卫生间墙砖
所有厨卫、阳台的地砖
衣柜移门
厨卫隔断门
楼梯
卧室原木门
墙纸
木地板
所有灯具
家具、家电
厨卫小五金
艺术玻璃
雕花隔板
电视背景墙砖
门槛石
飘窗台面
封阳台
。。。
。。。
还有这么多的东东未定呀! 看来以后的路还真是漫长啊

回复

使用道具 举报

867

帖子

0

原创值

996

金币

装修大学_研究生

Rank: 5Rank: 5

积分
744

社区居民忠实会员社区劳模

 楼主| 发表于 2010-09-17 22:40:22 | 显示全部楼层
引用第12楼谈笑_间于2010-09-16 06:43发表的 :

这种新中式的玄关隔断也是我喜欢的,期待哈。。。。


抱歉。。。抱歉
刚刚才看到版主大人奖的金币,受宠若惊噎!谢谢!谢谢!
小女子今后一定努力装修,勤奋写日记。。。
回复

使用道具 举报

867

帖子

0

原创值

996

金币

装修大学_研究生

Rank: 5Rank: 5

积分
744

社区居民忠实会员社区劳模

 楼主| 发表于 2010-09-18 09:17:16 | 显示全部楼层
仅仅一天的周末,今天安排如下:
上午去RH确定设计方案,看工程造价;
去南湖市场找雕花隔板;
去万家丽看瓷砖;
顺便看看墙纸;
。。。
晚上回来小结收获
出发喽~~~
回复

使用道具 举报

1万

帖子

0

原创值

9607

金币

论坛元老

掰子姐

Rank: 15Rank: 15Rank: 15Rank: 15Rank: 15

积分
11275

吃货社区居民社区明星忠实会员最爱沙发新人进步奖幽默大师奖贴图大师奖原创先锋奖金点子奖特殊贡献奖宣传大使奖优秀斑竹奖终身成就奖灌水天才奖社区劳模原创达人

发表于 2010-09-18 09:21:37 | 显示全部楼层
装修起来,都是忙碌的周末~
回复

使用道具 举报

897

帖子

0

原创值

117

金币

装修大学_研究生

请勿广告

Rank: 5Rank: 5

积分
905

社区明星最爱沙发社区居民

发表于 2010-09-18 09:40:24 | 显示全部楼层
引用第17楼熏衣草于2010-09-16 21:01发表的  :

小陶:我是个要求很高的完美主义者,装修的是要烦你多操心哦!

呵呵都是我份内之事,当全力为之。
回复

使用道具 举报

867

帖子

0

原创值

996

金币

装修大学_研究生

Rank: 5Rank: 5

积分
744

社区居民忠实会员社区劳模

 楼主| 发表于 2010-09-18 19:45:34 | 显示全部楼层
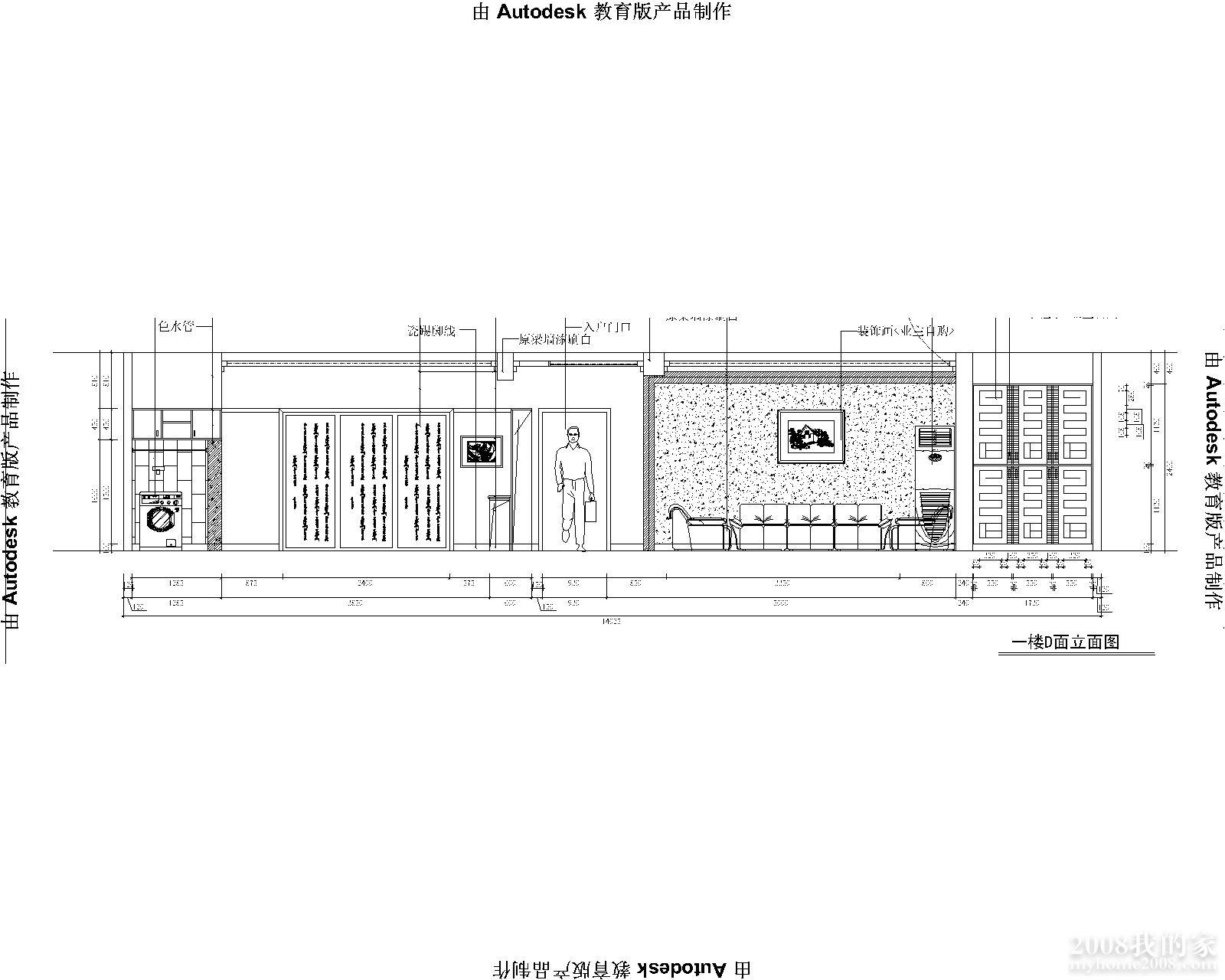
满意的设计方案新鲜出炉:
呵呵。。。看来Z工设计师真正用起心思来还是挺不错的,今天我终于看到了一套令我满意的设计方案。虽然还未出效果图,但我似乎可以想象的到未来新家的俊俏模样了,心情大好呀!
先上几张立面图过过瘾

沙发背面墙设计,纠结是贴墙纸呢还是刷漆?

沙发背面墙设计,纠结是贴墙纸呢还是刷漆?

卧室设计,床的背景墙出乎意料哦!

卧室设计,床的背景墙出乎意料哦!

最满意的二楼楼梯台设计,Z工还是蛮有才气的嘛!一次性通过!

最满意的二楼楼梯台设计,Z工还是蛮有才气的嘛!一次性通过!

期待我的艺术玻璃楼梯玄关的惊艳效果

期待我的艺术玻璃楼梯玄关的惊艳效果
回复

使用道具 举报

867

帖子

0

原创值

996

金币

装修大学_研究生

Rank: 5Rank: 5

积分
744

社区居民忠实会员社区劳模

 楼主| 发表于 2010-09-18 20:22:01 | 显示全部楼层
  看了脑壳发晕的造价单:
设计方案有惊喜,工程造价单可也给了我一个不小的“惊喜”——
工程半包预算价接近9万,我家可是除了客餐厅造型和展示柜外,其他衣柜、书柜、吊柜。。。所有的木工都外包哦!这里仅仅是水电、泥工、油漆、少量木工等基础工程。
恩。。有些超我的预算啦
找来小段总想策策价格,无奈我乃笨嘴笨脑一族,对造价单上的满表格的小蚂蚁数据看的两眼转星星也看不出什么门道来。
所以,在小段总“针对精简项目减少工程价”的最高指示下,我看了半天,只找出了
——一组衣帽间衣柜、柜体防潮这2项可减掉的项目。

呜呜。。。人家小段总开出的工程单价那叫一个坚挺,这么多密密麻麻的项目一加起来,怎么看怎么策也少不了8万5呢!

回到家再仔细看看这厚厚一叠的造价表,无奈,无语,
还是看得发晕也没找出多少漏洞,只发现了可以去掉窗帘盒这一项。

回复

使用道具 举报

867

帖子

0

原创值

996

金币

装修大学_研究生

Rank: 5Rank: 5

积分
744

社区居民忠实会员社区劳模

 楼主| 发表于 2010-09-18 20:36:12 | 显示全部楼层
狂长草的青花瓷卫浴砖:
今天在马可波罗看到一款名为青花瓷的卫浴砖,好漂亮!可是价格好贵哦!咱买不起
后来又在东鹏看到一款类似效果的青花花砖 ,也挺漂亮,价格是65一片(300*450),勉强可以接受,决定去蒙娜丽莎买了那款特价白色花砖来配东鹏的青花砖。
咱来一山寨版青花瓷系列试试

马可波罗的青花瓷系列

马可波罗的青花瓷系列
回复

使用道具 举报

897

帖子

0

原创值

117

金币

装修大学_研究生

请勿广告

Rank: 5Rank: 5

积分
905

社区明星最爱沙发社区居民

发表于 2010-09-19 10:10:01 | 显示全部楼层
呵呵  设计加了很多新想法进去了。L姐,预算也是按照项目来做的了,做出来的效果一定保质保量
回复

使用道具 举报

您需要登录后才可以回帖 登录 | 立即注册

本版积分规则