|
楼主 |
发表于 2016-05-09 17:02:07
|
显示全部楼层
我对生活阳台的一点看法
本帖最后由 littleboy 于 2016-5-11 12:39 编辑
在看设计图之前,先阐述一下我对生活阳台的一些需求:
1. 物业不允许把晾晒的杆子伸出去,所以我家可能装不了伸缩杆
2. 我家需要在这里放一个锅炉,给地暖烧水的
3. 在水槽上方,高度合适的地方要有一根杆子,让我可以挂东西
再来看看我们的设计图,首先是餐厅和生活阳台的门:
其实,我是喜欢平开门的,类似于这种
但是由于我要在生活阳台晾晒衣服,这么平开门会容易刮到,没办法,只能放弃了
不过,不管如何,门的款式还是可以参考一下的。
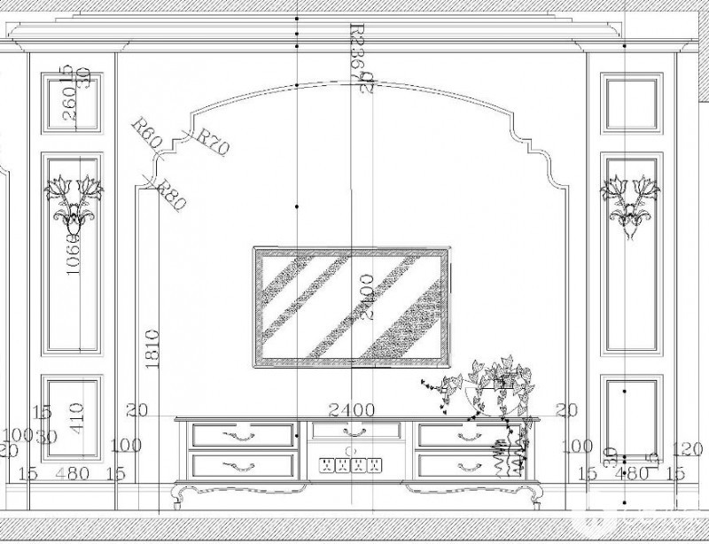
再来看看立面图:
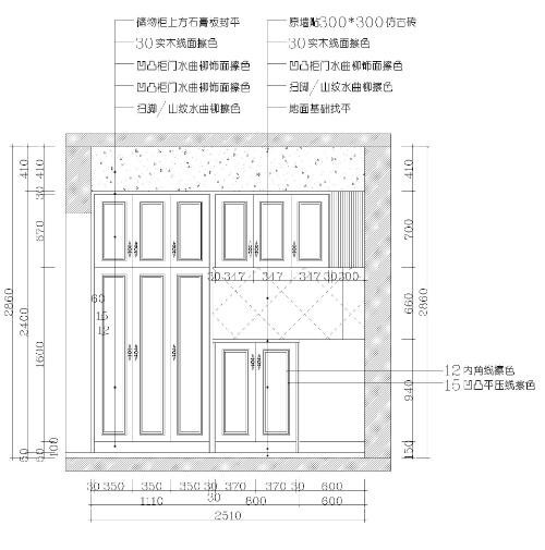
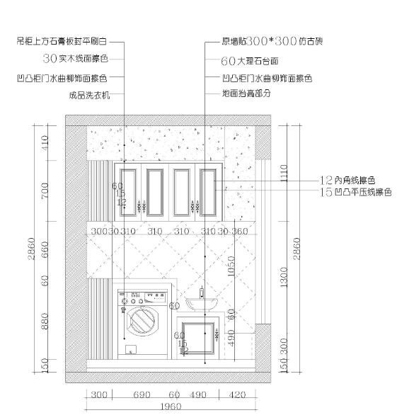
从上往下看,吊柜的上方是用石膏板封了的。410cm的空间被浪费掉了,我感觉可以把吊柜做成这样子,多一点收纳空间,让我可以放一些不常用的东西,比如大包的洗衣粉,大瓶的洗衣液之类的。甚至是大包的纸巾。
洗手台的台上盆我也不是很喜欢,我个人比较倾向于台下盆。而且,我不太中意那个落差,我想一个平整的台面,上面用抽拉式,可以左右旋转的龙头。比如这样
就算不用平整台面,也不用做那么低吧?目前的设计,洗个手都要弯腰,如果手洗衣服,会累死去的。落差小一点也可以接受,像这样:
而且,洗衣房我也不想斜贴仿古砖。我们生活阳台是一个采光的主要区域,餐厅的光线都来自于生活阳台那里。所以,我需要用反光条件更好的白色小瓷砖用工字贴法。
台面,我喜欢非同的爵士白,感觉和国外的图片很接近。
这里又没有油污,应该不需要花岗石吧
看了那么多图片,顶上都是平的,不需要搞什么吊顶,反正生活阳台也不是有什么景致的地方。
所以,我这个吊顶的设计师不合适的。
地面,就和上面一样用耐脏的大砖吧,灰色之类的。平时也要在这里摘菜的,难免有一点泥土
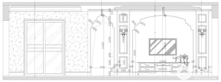
再看看另外一个面的设计图
这个立面并对着餐厅,平时一般看不到,而且它正对阳光,所以我打算这么利用:
1. 我打算在红色标记这里放脏衣篓
类似
具体采取哪种方式,还要和家人商议。
2. 下面红色方框的位置是否可以搞一个简单的晾晒和挂件的功能,
那里可以考虑放一根杆子,参照
衣架子都放在那里,平时洗完衣服就不用费老大力气取衣架了,顺手可及
当然,还有两外一个方案
看起来不碍事,也能够晾晒一些简单的小件物品。不过这东西不晓得好用不,也许是个鸡肋
想法提供给设计师,具体采纳不,有她说了算吧。
左边靠墙的地方是一组1.6米的柜子,这里面怎么用呢?我想参考这个,简单地说,吸尘器要藏在里面。而且,我想在里面做一个插座,到时候给吸尘器充电也方便些。具体插座的定位,要研究一下戴森的款式才好决定。
上面的想法如果能够实现,就好了。可惜,现实是残酷的,我的地暖锅炉还没地方放啊 ,怎么破?
过两天和设计师聊聊
|
|