QQ登录    

08我家网

2023兔年大吉

【2016最刻苦钻研奖】湘潭长房简约美式家,将美式进行到底 (更新无限制科学上网方案)

  [复制链接]

888

帖子

0

原创值

946

金币

大四_装修达人

Rank: 4

积分
472
 楼主| 发表于 2016-03-16 17:02:26 | 显示全部楼层

第四次上首页了

4.jpg


留个纪念先~~~~
现在更新帖子慢了,主要是干货存量不多了。我又不喜欢灌水的,接下来还真不知道该写什么好了。
最近一周我要忙着工作上的一些事情,更新可能会慢一点了。

回复

使用道具 举报

888

帖子

0

原创值

946

金币

大四_装修达人

Rank: 4

积分
472
 楼主| 发表于 2016-03-25 09:21:40 | 显示全部楼层

第五次上首页了~~~~~~

留个纪念先~~~~~~~
厨房里面貌美的面包砖那天在小蜜蜂找到了,果然貌美如花啊,只是价格有点太贵了。搞不起啊
5.jpg


回复

使用道具 举报

888

帖子

0

原创值

946

金币

大四_装修达人

Rank: 4

积分
472
 楼主| 发表于 2016-03-25 09:34:12 | 显示全部楼层

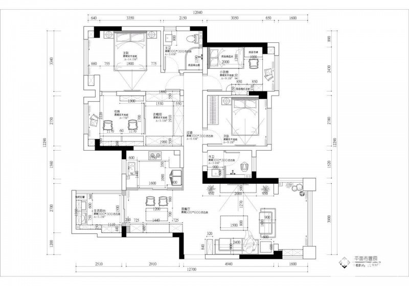
平面布置图 (四)

本帖最后由 littleboy 于 2016-3-25 09:38 编辑

前一阵子的平面图第三稿被老婆大人否决了,原因是——背靠背柜子不好看,不好看,不好看!
重要的事情说三遍,于是,我们取消了书房那种狭长的格局,少做一些柜子。
现在第四稿出来了,电视机柜子那里不打算做60cm厚度的柜子,设计师说背面朝书房做一排错落有致的书柜,可是我觉得那样子现代感太强,不接受。设计师认为书房靠着窗户那里做一点榻榻米,看书累了可以休息一下,底部也有一些储物空间。可我不喜欢榻榻米,总感觉这个不是美式该有的东西。
同时,这个并排的书桌,我办公的时候老婆在旁边玩游戏的话,总感觉会有一点相互干扰。老婆又想要一个衣帽间,这一排柜子也没有衣帽间的感觉。为了满足她的小小心愿,这个方案还是需要排除。
4.jpg


不过,话说回来,如果不是很纠结与榻榻米的风格问题,不需要同时玩电脑,不需要纠结衣帽间感觉,从实用角度出发的话,这个设计还是很合理的。邻居们不妨考虑一下。
我们来说说它的优点:
1. 主卧的柜子离内卫比较近,洗澡拿衣服会比较方便。
2. 书房用双平开门的话,很容易出风格。同时通风和采光良好,空气对流,舒适性高。
3. 在来客人的时候,书房也能够当客人房睡一个人。
4. 榻榻米下方当个杂物间还是可以的。
回复 收藏

使用道具 举报

888

帖子

0

原创值

946

金币

大四_装修达人

Rank: 4

积分
472
 楼主| 发表于 2016-03-25 10:01:18 | 显示全部楼层

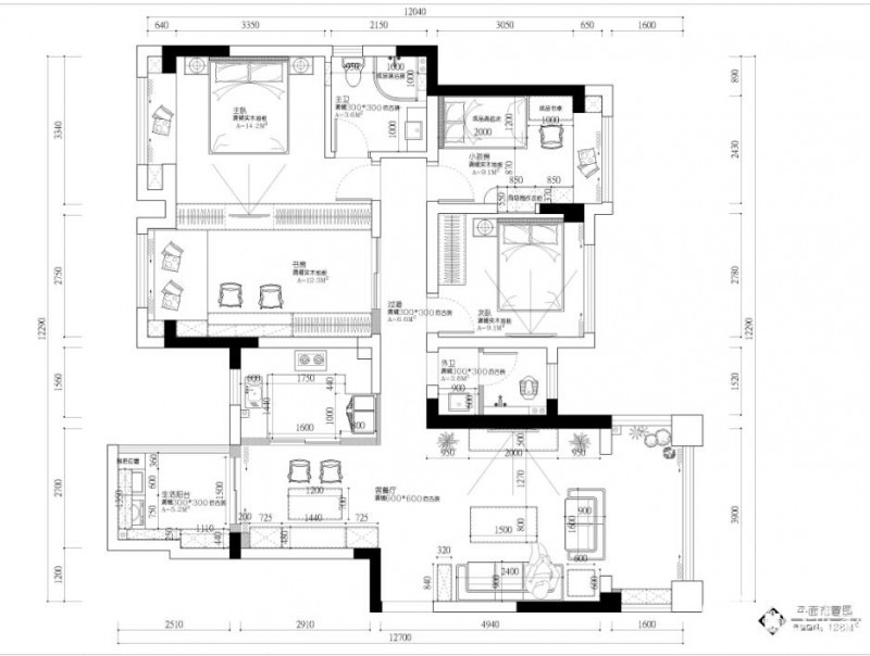
平面布置(五)

本帖最后由 littleboy 于 2016-3-25 10:06 编辑

之前发布的平面布置图四被我们否决了,最重要的原因是没有衣帽间,于是设计师在折腾纠结了一晚上以后,又不辞辛苦地给我们出了第五套方案。

20160324.jpg

先来说一说改动的地方:
1. 如图所见,衣帽间朝着书房开门,中间有一个门隔开。
2. 书房朝着主卧做一个隐形门
3. 主卫调整了一下布置,洗脸台更加靠近窗户,有利于排出湿气;马桶靠墙布置也不至于进门就看见。

再来说说我的一些修改意见:
1. 主卧还是需要一个飘窗的,书房要不要无所谓。设计师认为书房需要一个飘窗可以休息一下,不过我觉得在主卧有一个可以休息就行了,书房还是做书房用吧。本来就没有多远距离。
2. 我不打算在衣帽间用这种推拉门,我想直接在这里做一个拱。以后衣帽间还是做点柜门好。这样书房和衣帽间从视觉上看就是一个更加宽敞的空间。
1.png

3. 主卫做一个斜角,看起来宽敞一些。
4. 儿童房那书桌太憋屈了,和美女sk小姐沟通了一下以后,我们一致认为,应该把儿童房的飘窗打掉做书桌,原来的成品书桌位置就留空了。类似于这种
2.jpg
   4.jpg


5. sk美女建议我们在外卫隔断那里做一个透光但是遮挡视线的布置,这样外面的洗脸台采光会更好。类似于这样。
3.jpg

这个布局也有一点点弊端:
1. 书房对流会差一些
2. 衣帽间离主卫远了一点,洗澡拿衣服要跑一跑了

没办法了,纠结了几个月了,设计师快崩溃了,就这样了吧。

回复 收藏 回复(1)条

使用道具 举报

122

帖子

0

原创值

176

金币

大三_装修里手

Rank: 3Rank: 3

积分
61
发表于 2016-03-27 00:40:06 | 显示全部楼层
挺不错的呀
回复 回复(1)条

使用道具 举报

5201

帖子

0

原创值

6560

金币

管理员

Rank: 20Rank: 20Rank: 20Rank: 20Rank: 20

积分
4270

社区居民新人进步奖原创达人

发表于 2016-03-28 10:05:15 | 显示全部楼层
littleboy 发表于 2016-3-25 10:01
之前发布的平面布置图四被我们否决了,最重要的原因是没有衣帽间,于是设计师在折腾纠结了一晚上以后,又不 ...

日记已经被推荐至网站首页,感谢分享,装修加油哦~
1.jpg


回复 回复(1)条

使用道具 举报

888

帖子

0

原创值

946

金币

大四_装修达人

Rank: 4

积分
472
 楼主| 发表于 2016-03-28 10:20:14 | 显示全部楼层
蔚蓝 发表于 2016-3-28 10:05
日记已经被推荐至网站首页,感谢分享,装修加油哦~

谢谢蔚蓝鼓励
回复

使用道具 举报

888

帖子

0

原创值

946

金币

大四_装修达人

Rank: 4

积分
472
 楼主| 发表于 2016-03-28 10:20:26 | 显示全部楼层

我是很纠结的~~~~~
回复

使用道具 举报

888

帖子

0

原创值

946

金币

大四_装修达人

Rank: 4

积分
472
 楼主| 发表于 2016-03-28 12:50:45 | 显示全部楼层

第六次上首页

第六次上首页了,截图留念~~~~~~~~
要开始做立面设计了,我会继续更新
6.jpg

回复

使用道具 举报

524

帖子

0

原创值

1538

金币

大四_装修达人

Rank: 4

积分
269
发表于 2016-03-28 14:08:33 | 显示全部楼层
简直是在读全套装修知乎!
收藏了!
回复 回复(1)条

使用道具 举报

您需要登录后才可以回帖 登录 | 立即注册

本版积分规则