|
楼主 |
发表于 2016-05-06 17:25:56
|
显示全部楼层
本帖最后由 littleboy 于 2016-5-7 00:48 编辑
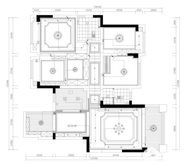
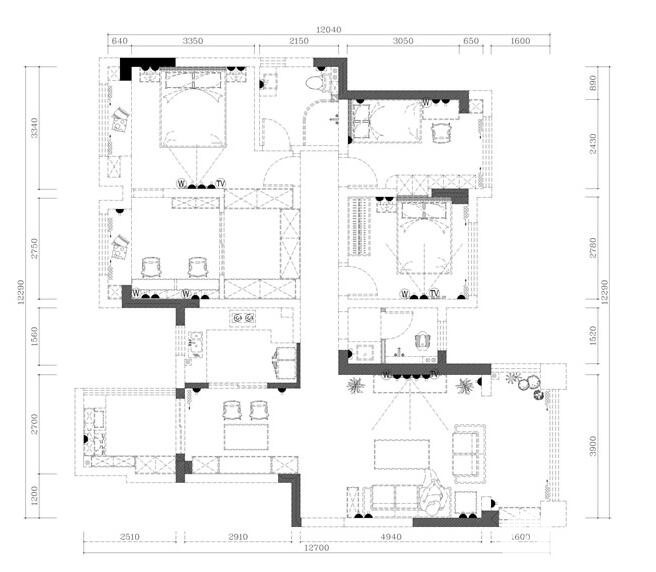
前面说完了插座的问题,现在来看看我们的灯光设计
灯光设计是一个颇有学问的事情,不但要考虑灯光的效果,还要考虑使用的便利性。
我主要是从两个角度来考虑开关的位置:
1. 尽量靠近使用区域;
2. 尽量避免使用多联开关,容易搞混淆。
我家的卡座是参照这个来设计的。餐厅灯在桌子的正上方,辅助光源在卡座的两侧,从设计图上面来看,灯的位置符合我的要求了。
再来看看开关的位置,第一张整体图可能看不清楚细节,我们放大一下,红色的地方是餐厅灯开关的位置。它安排在卡座旁边,属于餐厅功能分区,不容易搞混。这个位置安排地很棒,给设计师点一个赞
再来看看客厅的灯光布置。
红色的地方是一个双控开关,控制客厅的主灯,蓝色标记的地方是控制周围的小灯。从这个设计的思路来看,主人进门第一个打开的灯是主灯(因为它最近)。可是,日常生活中,在没有客人来的情况下,我是用周围的小灯照明的,因为他们比较省电。所以,蓝色的开关我想更加靠近门一点。
再来看厨房的开关
之前说过,我不喜欢双联,因为我是一个很没有记性的人,双联开关永远记不住的。厨房这里一个是凉霸,一个是吊顶顶灯。对我来说,还是这样比较容易记忆。人懒,木有办法。
另外,我家还需要一盏水槽灯。这是从逯薇最近的一篇帖子里面看到的,转载部分如下:
吊柜底灯,我很想搞一个。问问看家和佳美有没有好的灯介绍。
这个水槽灯开关安排在哪里,明天还要和设计师好好聊聊。
再来看看外卫的开关控制。
这里要考虑的地方颇多:
1. 取消三联开关;
2. 从安全角度考虑,开关不能安置在浴室里面;
3. 我家不用集成电器,不用浴霸或者黄金管(浴霸太刺眼,黄金管太难看),我会安排一个松下暖浴快。
4. 还需要一个换气扇,这里漏了一个开关。
5. 外卫电器使用频率:换气扇>灯>暖浴快 (每天要上好几次厕所,晚上或光线不好才会开灯,冬天才会用暖浴快)6. 给镜前灯安排一个开关
综合以上考虑,我打算这么安排开关位置:
最顺手的地方是换气扇开关,然后是电灯开关,最后是暖浴快开关,开关都放置在干区。
看完了外卫灯光,我再来看看衣帽间
衣帽间是我老婆的心头好,为了让老婆开心地欣赏自己的败家物品,我需要为她提供最好的灯光效果
现在这个设计,只有一盏主灯,不管我打开哪个衣柜,光源永远在我的后上方。我自己的投影会挡在前方物品上面,这必然会让我老婆的心情打折扣。
我们再来看看国外是怎样处理衣帽间灯光的:
怎么样,秒懂了吧?明天和设计师聊聊这个话题。
看完了衣帽间,再来看看书房。书房是我的阵地,我要细细思量。
先看设计师原稿
这个设计有点简单了,进门打开顶灯,如果要躺在飘窗上看书,可以用转壁灯。但是,我面临几个问题:
一,光源在后上方,阴影始终是投在我前方位置。
二,飘窗只有一盏灯,如果我们两人都想坐在飘窗上静静地看书,只有一盏灯肯定不够用。也许设计师是考虑到要做一个小书架,没地方摆灯。那么我们可以参考这个
只要开动脑筋,总是有办法给灯找一个位置的。
由于顶灯不能作为工作灯,在目前的设计下,如果要写字,讲必须用台灯。可以预见,效果差不多会这样:
我认为,这是一个败笔:台灯和电脑抢有限的桌面空间。在我过去的读书生涯中,我对台灯总是爱恨交加——感谢它给我提供光源,同时又抱怨它占用了我的桌面空间,让我无法多放几本书在顺手的位置。
我认为,可以参考如下几种灯光使用方法, 在获得照明的同时,不占用桌面空间。
看完了书房,我再来看主卧的灯光设置。
从图片看,设计师是这样安排的:
1. 进门是一个双联双控开关,控制主灯和床头上方天花板的灯光。
2. 床头有一个双联双控开关,和进门那里功能一致。
3. 飘窗那里是一个联动开关,按一下,两盏灯同时亮,或者同时关。
我们再来看禄薇是怎么阐述卧室灯光的:
然后对比一下我们的设计,得出结论:
1. 可以考虑不要主灯(这个有点冒险,要和老婆商议一下)
2. 没有单独可控的床头摇臂阅读灯
3. 没有感应小夜灯
4. 飘窗那里的阅读灯应该单独可控,一个人的时候,一盏灯足以,没必要去浪费电。
|
|