|
楼主 |
发表于 2016-05-10 02:24:51
|
显示全部楼层
书房立面图点评
本帖最后由 littleboy 于 2016-5-10 02:27 编辑
书房是我的阵地,在我家里面,这一块区域将会是我待得最多的地方,不得不用心对待啊。
先看看设计师的立面图如何,进门的时候,我们看到的立面是这样子的
打开柜门,吊柜效果如下
从大概的布局来说,我是持肯定态度的。
只是有些细节我想完善一下:
1. 吊顶有点过多,浪费了一些收纳空间,导致只能够做两层柜子
我更加倾向于三层的,就像这样
顺便说一下,我很喜欢在工作区域的灯光,局部照明,不占用桌面空间,也能够烘托一下气氛
2. 我想在台面上方的位置有一个插座,之前的设计师都安排在下方的。我觉得在上方更加方便手机充电
类似于这样 (下图也做了辅助照明)
3. 我不怎么想用玻璃当柜门,我个人认为,木柜门还是更有质感一些
4. 书桌的正面位置,吊柜和地柜之间,我想利用一下墙面,用软木垫固定备忘便签
5. 在吊柜的大隔层之下,我打算做一点小小的隔层,里面放藤篮,用来装一些不占空间的小工具。比如,剪刀,便签条,笔
备注:
我曾经也看到过在那里用黑板漆和小挂篮的,我个人认为比较low
首先,那位置根本不好写字,还是软木板比较好用;其次,几个挂篮晃来晃去的也装不了太多东西
转过头看一下进门的地方,设计师图片如下:
这里有几个我不喜欢的地方:
1. 隐形门,我认为不如美式的方格门好看
2. 书架没有利用到位,完全可以顶天立地的
转头看看窗户的位置,
飘窗没有利用好,我希望是这样子的
飘窗两边也是可以做柜子的
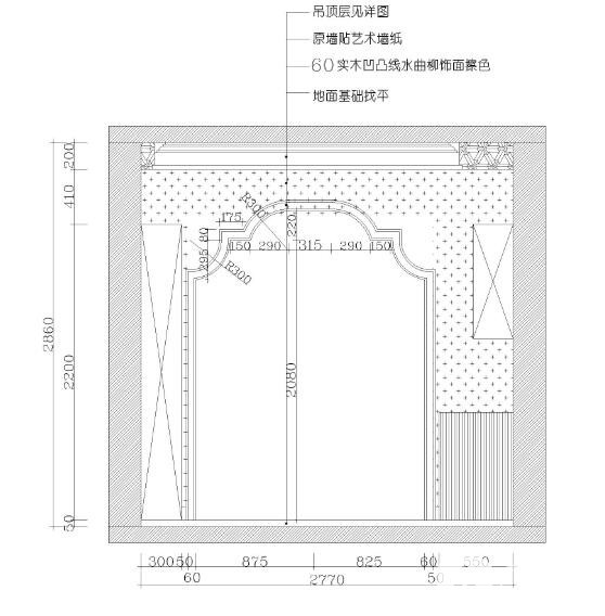
最后一个立面是书房和衣帽间的隔断,我们现在看到的是一个异性拱
我只能说,我一点都不喜欢这种奇怪的造型
我比较倾向的是双平开
不过,做了双平开,这个空间就会有点显小了。想来想去,还是做一个普通的拱形吧
|
|