|
楼主 |
发表于 2017-03-06 10:19:18
|
显示全部楼层
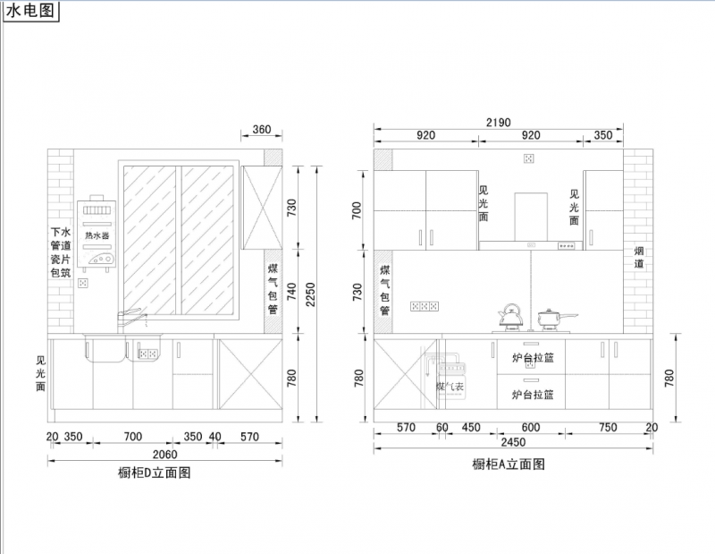
验房没有大问题,现在就在准备各种前期需要考虑的问题,第一件事情不是敲砌墙,请来了橱柜设计师来家里量尺出水电图,希望能有足够的时间给我思考厨房的布局构思,我爸、我妈、还有我,都是家里经常掌勺的主,所以厨房这个地方的设计,功能区域是否合理,显得至关重要,所以不敢怠慢,上周五先和设计师预约了时间量尺,昨天设计师就把图纸发给我了,橱柜是去年6.25旺德府08周年活动跟团定的家和佳美,年后08网又出来了家和佳美的团购,看到现在团购的价格,发现自己还是比较明智的,幸亏去年跟了易匹马的团,早早的跟团了,感觉自己赚了 ,先上设计师的初稿,按老规矩,回复可见哦!
初一看,感觉也比较合理的,黄金区,银一区、银二区都是在合理的范围(可以参考《小家越住越大》这本书,或者关注“家的容器”微信公众号,里面有橱柜篇的设计宝典),但是仔细琢磨,感觉还有能改进的地方,能够设计的更加合理实用的;
1、抽烟机处右边的两个柜子,因为做的L形,右边的冰箱到橱柜的具体,到时候打算放个80CM高的置物架,到时候左边的这个柜门肯定会影响正常的开关门,会不实用,整体灶台和抽油机都往右移,还大大的增加了操作台面。
2、其实有想过做高低台面的,看到08网友好多都是这样处理的,但是结合我妈的身高,我现在自己家里的橱柜是800高的,我妈说切菜,做饭没有觉得不方便,挺好的,就不需要额外做,而且结合我家的实际情况,拉篮和右边的的台面,做高低落差会有点不方便
3、橱柜最实用的是抽屉,他帮我设计的橱柜,只有2门,而且宽度只有350,肯定偏小了,设计师说因为考虑到水槽的大小不确定,按照常规水槽需要留那么宽的距离,哪知我去年趁着活动早早就在天猫定了佳德的水槽和淋浴龙头,附上佳德的价格,升级的50管下水,再也不用担心排水不流畅了,水槽+10寸淋浴龙头,一共15**元
现在水槽已经确定尺寸,果断可以改橱柜设计图,也如愿了了我三门抽屉的念想
其他的关于插座的高低位置,好像都没有多大问题了,不知道我这种非专业人士的想法是不是合理,如果有更好的建议可以说说看,给我提提建议哦。
|
|