荣誉会员
我们装的不是房子,而是为最爱的家人营造更舒适的生活!
- 积分
- 940
     
|
楼主 |
发表于 2013-10-08 13:26:54
|
显示全部楼层
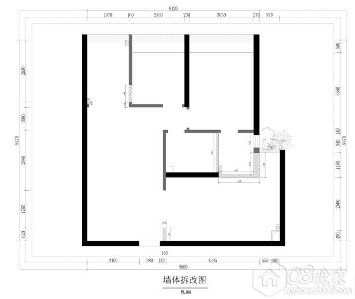
奇葩户型大变身--之敲墙篇
国庆七天乐啊,姐是七天累,抽个时间回家玩了两天放松了一下。
昨天回来去工地检查了一下敲墙的质量,还很满意!
虽然偶不是太懂敲墙这东东有啥要注意的,但是看完敲完后的效果,放心了。
进门的地方敲掉这堵墙,留着做鞋柜。
曾无比嫌弃厨房和餐厅暗淡的光线,敲完之后我心里踏实不少。厨房和餐厅的光线都非常不错!
敲完之后这里能穿越了。从主卧穿越至卫生间还可以到厨房,哈哈!奇葩了点,等着我的大变身吧!
包煤气管很到位,赞一个!
有点让人看不懂的敲墙,哈哈,等着变身。正在砌墙中,去工地拍照去! |
|