QQ登录    

08我家网

2023兔年大吉

【2013参赛日记】筑一个温暖的家,摸索中前进的清包路

  [复制链接]

3950

帖子

0

原创值

3945

金币

装修大学_博士生

Rank: 6Rank: 6

积分
2305

社区居民忠实会员社区劳模最爱沙发

发表于 2013-10-24 11:04:50 | 显示全部楼层
看了那么多散包和清包的帖子,我突然还是想半包了
回复

使用道具 举报

799

帖子

0

原创值

1355

金币

装修大学_研究生

Rank: 5Rank: 5

积分
716

社区居民忠实会员社区劳模

 楼主| 发表于 2013-10-24 11:14:05 | 显示全部楼层

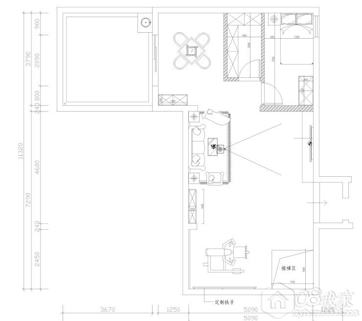
地下室设计平面图

我家设计是走了弯路的,现在有LW帮忙,省心不少!很多细节上的问题,一个电话打过去,就变得简单。地下室原来没有设计电路图,只有一个没有派上用场的平面图,欧阳要图才敢施工。给大家看看LW的图,解决了客房、储物间、休闲、健身多方面需要,细节都到位了!
        天井里的排水沟,注意到了吗?是四边都做了排水沟呢!原来欧阳的想法是三面做排水沟,独缺了门口这一面,并且把洗手池的水直接排到排水沟里的,我要求布排水管,因为排水沟里的水会长虫子、生蚊子,欧阳还认为没关系,但是LW一句话,他就把排水管布到位了。并且按LW的要求,四面做排水沟,坡度往外面斜,这样,下雨就不会往室内倒灌雨水了。
zz.jpg
回复

使用道具 举报

799

帖子

0

原创值

1355

金币

装修大学_研究生

Rank: 5Rank: 5

积分
716

社区居民忠实会员社区劳模

 楼主| 发表于 2013-10-24 11:24:08 | 显示全部楼层

回 风风吹落 的帖子

风风吹落:看了那么多散包和清包的帖子,我突然还是想半包了 (2013-10-24 11:04)
半包要找个负责的,品性好的项目经理,你才能省点心。
回复

使用道具 举报

1万

帖子

628

原创值

1万

金币

荣誉版主

积分
8155

社区居民忠实会员社区劳模最爱沙发社区明星

发表于 2013-10-24 11:34:07 | 显示全部楼层
摸摸!愿逝者安息,生者坚强!
回复

使用道具 举报

1万

帖子

628

原创值

1万

金币

荣誉版主

积分
8155

社区居民忠实会员社区劳模最爱沙发社区明星

发表于 2013-10-24 11:36:05 | 显示全部楼层
地下室通风肿么样?休闲娱乐要求不高,当客房要求就要高一点的。
回复

使用道具 举报

799

帖子

0

原创值

1355

金币

装修大学_研究生

Rank: 5Rank: 5

积分
716

社区居民忠实会员社区劳模

 楼主| 发表于 2013-10-24 14:16:47 | 显示全部楼层

回 芹菜 的帖子

芹菜:地下室通风肿么样?休闲娱乐要求不高,当客房要求就要高一点的。 (2013-10-24 11:36)
装了全热交换新风系统,因匆忙,还没写新风,晚上补
回复

使用道具 举报

217

帖子

0

原创值

252

金币

大三_装修里手

Rank: 3Rank: 3

积分
177

社区居民忠实会员社区劳模

发表于 2013-10-24 15:36:17 | 显示全部楼层
    
回复

使用道具 举报

1万

帖子

628

原创值

1万

金币

荣誉版主

积分
8155

社区居民忠实会员社区劳模最爱沙发社区明星

发表于 2013-10-24 15:59:53 | 显示全部楼层

回 微笑朵朵 的帖子

微笑朵朵:装了全热交换新风系统,因匆忙,还没写新风,晚上补 (2013-10-24 14:16)
哦,那还是不错的。等更新,呵呵!
回复

使用道具 举报

1578

帖子

0

原创值

320

金币

装修大学_研究生

Rank: 5Rank: 5

积分
926

社区居民忠实会员社区劳模

发表于 2013-10-26 21:57:39 | 显示全部楼层
      
回复

使用道具 举报

333

帖子

0

原创值

778

金币

大四_装修达人

Rank: 4

积分
223

社区居民忠实会员

发表于 2013-10-27 07:41:07 | 显示全部楼层

回 微笑朵朵 的帖子

微笑朵朵:装了全热交换新风系统,因匆忙,还没写新风,晚上补 (2013-10-24 14:16)
设计师是文还是武啊,如果是文,就跟我是同一个设计师哦
回复

使用道具 举报

您需要登录后才可以回帖 登录 | 立即注册

本版积分规则